Status.
In progressConstruction year.
2026Architect.
Stranger ArchitectClient.
LCV Real EstateCategory.
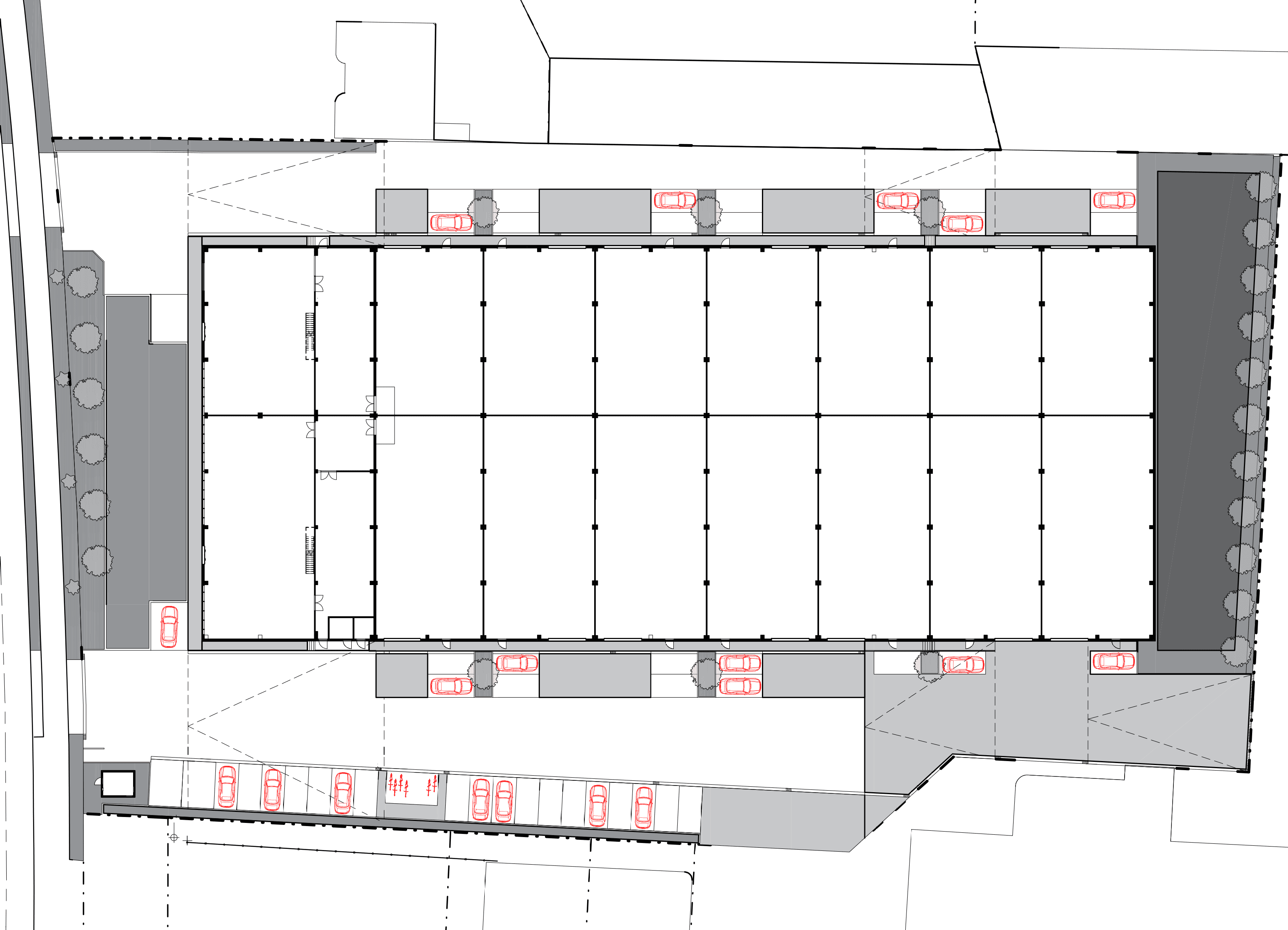
SME units - showroomFootprint.
4.356 m²SME units for sale or lease in Ronse | Business Park De Vier Kronen
Are you looking for a high-quality SME unit in Ronse for storage, production or distribution? Discover Business Park De Vier Kronen, a new and future-oriented business park located along Viermaartlaan in Ronse, East Flanders. This project combines a strategic location with modern and flexible business spaces, ideal for both start-ups and established companies.
Strategic location in East Flanders
Business Park De Vier Kronen enjoys an easily accessible location in Ronse, with good connections to the main road networks in East Flanders and Wallonia.
High-quality and flexible SME units
The project comprises 14 SME units with gross surface areas ranging from:
213 m² to 297 m²
In addition, the business park also includes:
a showroom with mezzanine of approximately 150 m², and
a pick-up warehouse with mezzanine of approximately 112 m²,
providing additional storage and usable space.
Shell condition for sale or lease – custom fit-out available
The units are offered in shell condition for sale or lease and can, if desired, be fully fitted out to suit your needs. This allows the layout to be perfectly tailored to your business processes or sector-specific requirements.
Why choose Business Park De Vier Kronen?
Strategic location in East Flanders with good accessibility
Possibility of custom fit-out
Suitable for storage, production, distribution and wholesale activities
Interested? Get in touch
Do you see Business Park De Vier Kronen as an opportunity for your business? Contact us today for more information about the SME units available for sale or lease in Ronse. We will be happy to assist you with your relocation or expansion plans.
Location
Contact
Do you have a query about any of these units? Contact us without obligation.











![[:swvar:ufile:12:description:]](/swfiles/files/Logo-cookies.jpg?nc=1767619963)