BE - Ophasselt
Businesspark Brambroek
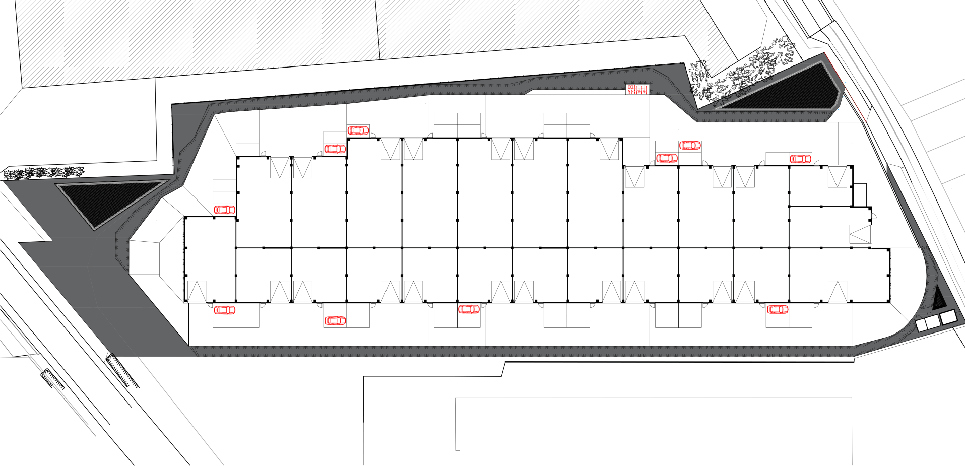
24 SME units
Located on the N8 and N42.
Project in preparation.
Status.
Project preparationConstruction year.
2026-2027Architect.
ATLR ArchitectenClient.
LCV Real EstateCategory.
SME unitsFootprint.
4.848 m² All measurements and pictures are for information only and non-binding. The sale specifications take precedence over the sale plan.

All measurements and pictures are for information only and non-binding. The sale specifications take precedence over the sale plan.
Location
Contact
Do you have a query about any of these units? Contact us without obligation.









![[:swvar:ufile:12:description:]](/swfiles/files/Logo-cookies.jpg?nc=1761822529)