Statut.
En coursAnnée de construction.
2026Architecte.
Stranger ArchitectMaître d'ouvrage.
LCV Real EstateCatégorie.
Unités PME - Salle d'expositionSurface bâtie.
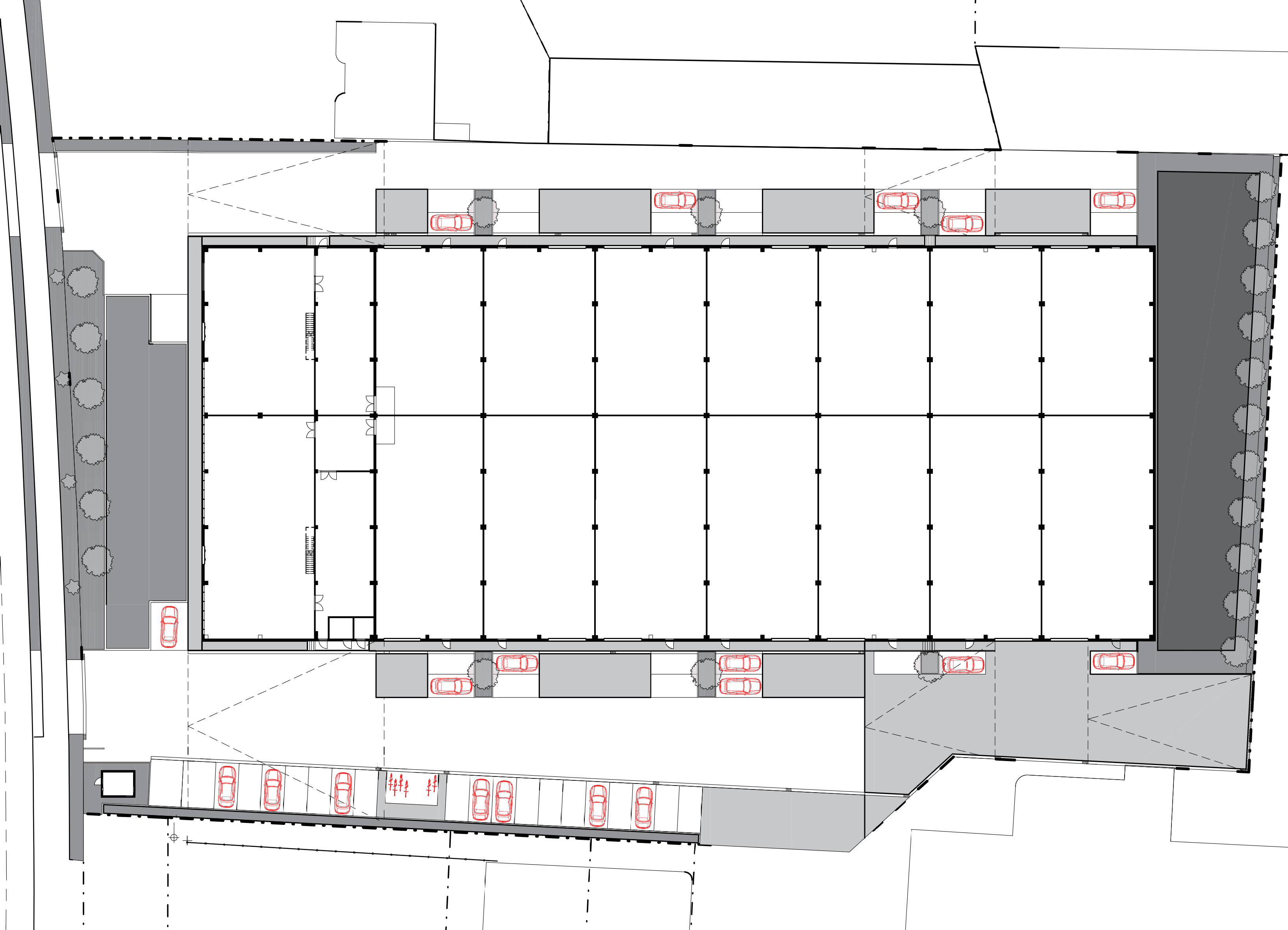
4.356 m²Unités PME à vendre ou à louer à Renaix | Parc d’activités De Vier Kronen
Vous êtes à la recherche d’une unité PME de qualité à Renaix pour le stockage, la production ou la distribution ? Découvrez le parc d’activités De Vier Kronen, un nouveau parc d’activités tourné vers l’avenir, situé le long de la Viermaartlaan à Renaix, en Flandre orientale. Ce projet combine une localisation stratégique avec des espaces professionnels modernes et flexibles, adaptés aussi bien aux entreprises en démarrage qu’aux sociétés établies.
Situation stratégique en Flandre orientale
Le parc d’activités De Vier Kronen bénéficie d’un emplacement facilement accessible à Renaix, avec de bonnes connexions vers les principaux axes routiers en Flandre orientale et en Wallonie.
Unités PME de qualité et flexibles
Le projet comprend 14 unités PME avec des surfaces brutes comprises entre :
213 m² et 297 m²
Le parc d’activités dispose également de :
un showroom avec mezzanine d’environ 150 m², et
un entrepôt de retrait avec mezzanine d’environ 112 m²,
offrant un espace de stockage et d’utilisation supplémentaire.
Casco à vendre ou à louer – aménagement sur mesure
Les unités sont proposées casco à la vente ou à la location et peuvent, le cas échéant, être entièrement aménagées sur mesure. L’aménagement peut ainsi être parfaitement adapté à vos processus d’entreprise ou à vos exigences sectorielles spécifiques.
Pourquoi choisir le parc d’activités De Vier Kronen ?
Situation stratégique en Flandre orientale avec une bonne accessibilité
Possibilités d’aménagement sur mesure
Adapté au stockage, à la production, à la distribution et au commerce de gros
Intéressé(e) ? Contactez-nous sans engagement
Voyez-vous dans le parc d’activités De Vier Kronen une opportunité pour votre entreprise ? Contactez-nous dès aujourd’hui pour plus d’informations sur les unités PME disponibles à la vente ou à la location à Renaix. Nous nous ferons un plaisir de vous accompagner dans votre projet d’implantation ou d’expansion.
Localisation
Contact
Vous avez une question sur l’une de ces unités ? Contactez-nous sans engagement.











![[:swvar:ufile:12:description:]](/swfiles/files/Logo-cookies.jpg?nc=1773312188)