Status.
In uitvoeringBouwjaar.
2026Architect.
Stranger ArchitectOpdrachtgever.
LCV Real EstateCategorie.
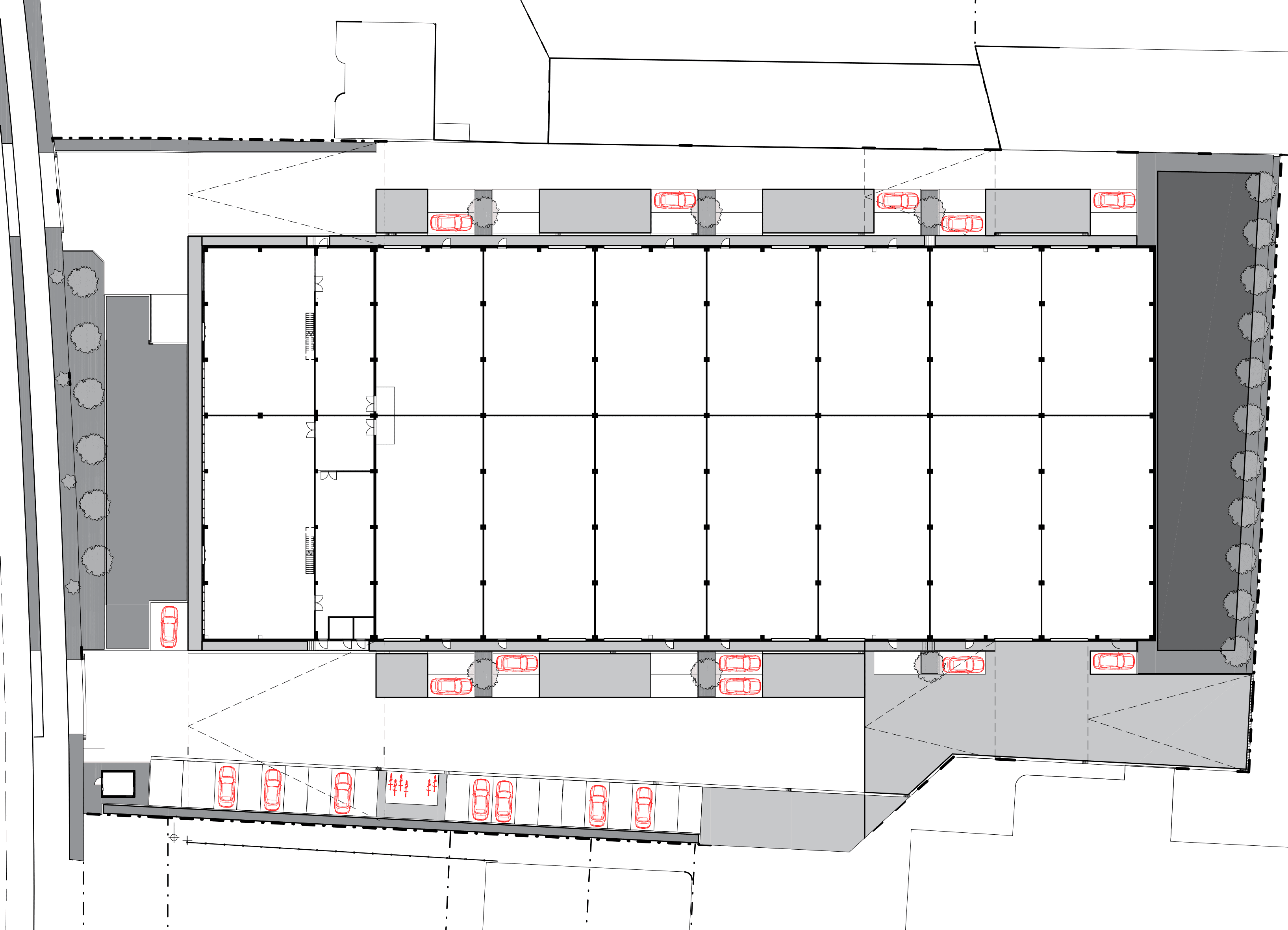
KMO units - showroomFootprint.
4.356 m²KMO-units te koop of te huur in Ronse | Bedrijvenpark De Vier Kronen
Bent u op zoek naar een kwalitatieve KMO-unit in Ronse voor opslag, productie of distributie? Ontdek Bedrijvenpark De Vier Kronen, een nieuw en toekomstgericht bedrijvenpark gelegen aan de Viermaartlaan in Ronse, Oost-Vlaanderen. Dit project combineert een strategische ligging met moderne, flexibele bedrijfsruimtes, ideaal voor zowel startende als gevestigde ondernemingen.
Strategische ligging in Oost-Vlaanderen
Bedrijvenpark De Vier Kronen geniet van een vlot bereikbare locatie in Ronse, met goede verbindingen naar de belangrijkste verkeersassen in Oost-Vlaanderen en Wallonië.
Hoogwaardige en flexibele KMO-units
Het project omvat 14 KMO-units met bruto-oppervlaktes variërend van:
213 m² tot 297 m²
Daarnaast beschikt het bedrijvenpark over:
een toonzaal met mezzanine van ca. 150 m², en
een afhaalmagazijn met mezzanine van ca. 112 m²,
wat extra opslag- en gebruiksruimte mogelijk maakt.
Casco te koop of te huur – afwerking op maat
De units worden casco te koop of te huur aangeboden en kunnen, indien gewenst, volledig op maat worden afgewerkt. Zo kan de inrichting perfect worden afgestemd op uw bedrijfsprocessen of sectorale vereisten.
Waarom kiezen voor Bedrijvenpark De Vier Kronen?
Strategische ligging in Oost-Vlaanderen met goede bereikbaarheid
Mogelijkheid tot maatwerkafwerking
Geschikt voor opslag, productie, distributie en groothandel
Interesse? Contacteer ons vrijblijvend
Ziet u in Bedrijvenpark De Vier Kronen een opportuniteit voor uw onderneming? Contacteer ons vandaag nog voor meer informatie over de beschikbare KMO-units te koop of te huur in Ronse. Wij begeleiden u graag bij uw vestiging of uitbreiding.
Locatie
Contact











![[:swvar:ufile:12:description:]](/swfiles/files/Logo-cookies.jpg?nc=1773312188)