Business park Bapaume A1
Unique view location in Northern France
Project in preparation
Status.
PROJECT PREPARATIONConstruction year.
2026-2027Architect.
Aavo ArchitectClient.
LCV Real EstateCategory.
SME - Offices - LogisticsDiscover this new project in preparation. Business park Bapaume has many assets, for example, this business park is located on the E15/A1 with very strong visibility from the highway. This plot is centrally located between Lille and Paris, so the A1 is the ideal connection betweeen these two cities.
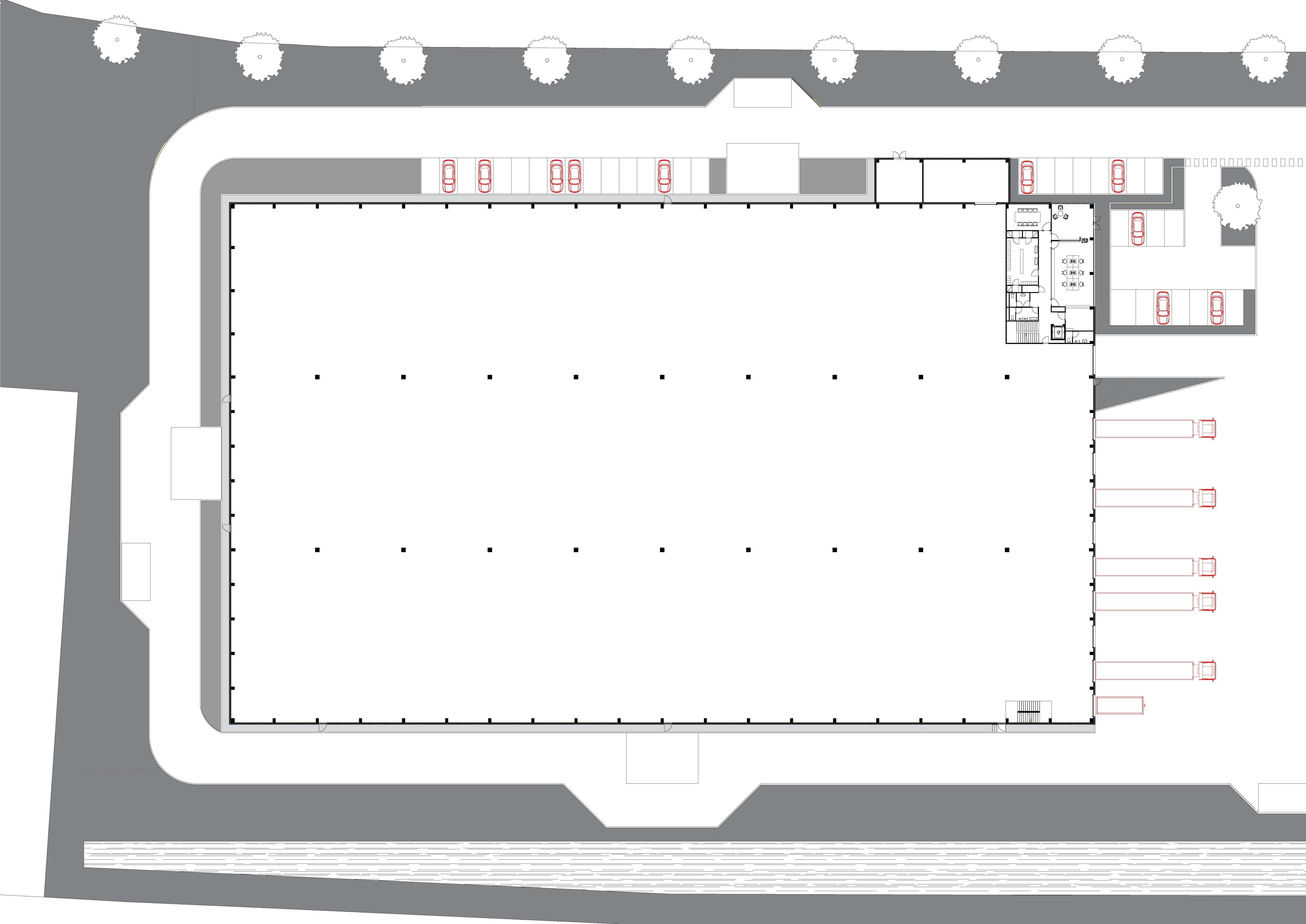
This new construction project includes warehouses for logistics, offices and SME units.
In block A there is a warehouse of 8,640 m² and an office of 242 m². In block B there are two warehouses of 4200 m² and 8550 m², as well as two offices of 242 m² each. The last block, block C, contains a combination of 1 warehouse of 6834 m², an office of 242 m² and 8 SME units with an area between 284 m² and 1154 m². This offer is available to rent as well as to buy, so the customer can choose what best suits his/her strategy.
Don't miss this unique opportunity to be part of this new project. If you are interested and would like more information, please contact us for more information. Then we will look together at how you can establish your company in this exceptional location.




Location
Contact
Do you have a query about any of these units? Contact us without obligation.












![[:swvar:ufile:12:description:]](/swfiles/files/Logo-cookies.jpg?nc=1768983751)