Bedrijvenpark Steenpoort
Highly visible location along the N32
Flexible SME units
Strategic location in West Flanders
Status.
CompletedConstruction year.
2024-2025Architect.
Architectenbureau SchepensClient.
LCV Real EstateCategory.
SME unitsFootprint.
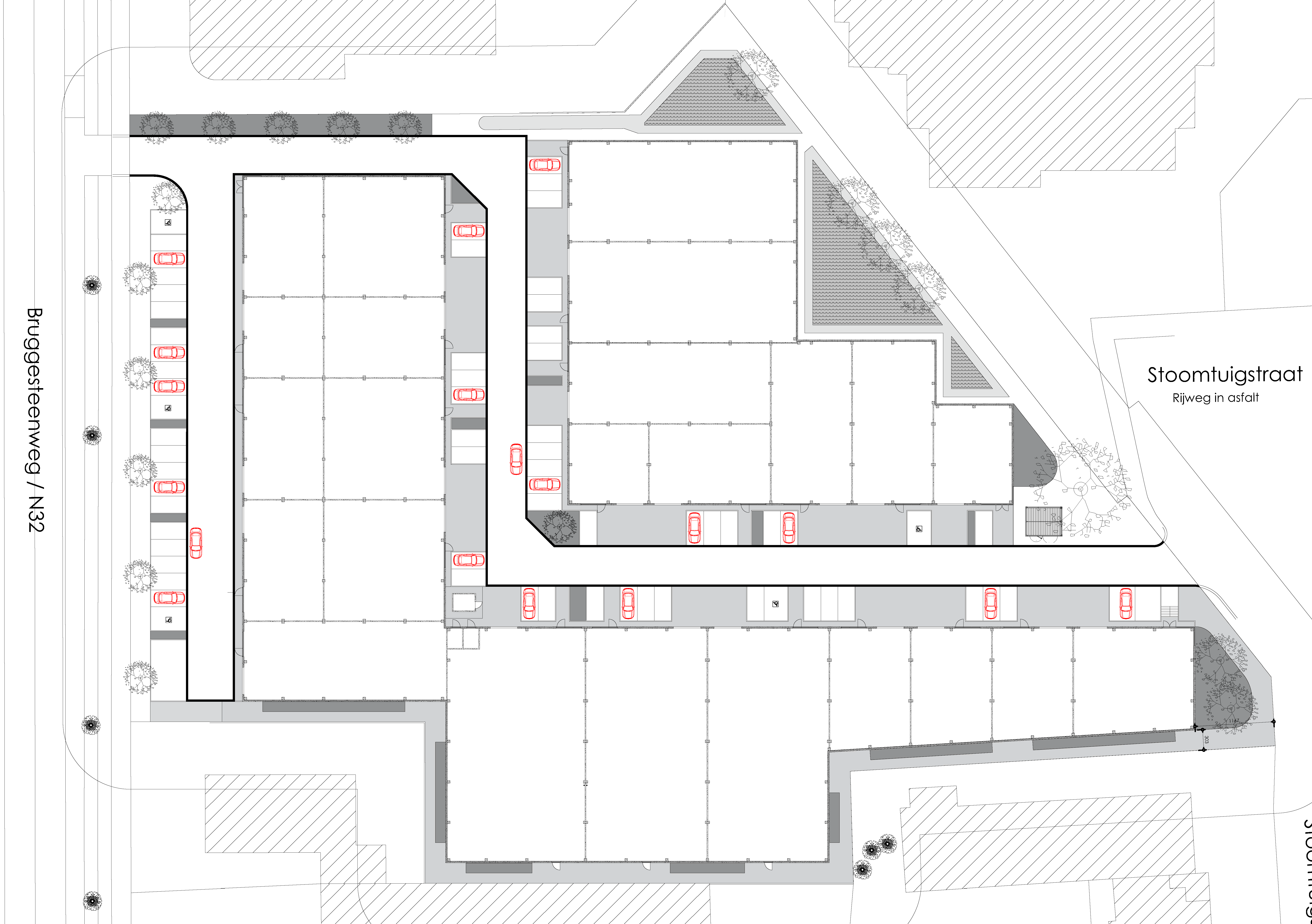
7.738 m²SME units for sale or lease in Hooglede | Business Park Steenpoort
Are you looking for an SME unit in Hooglede with excellent visibility and easy accessibility? Discover Business Park Steenpoort, a high-quality new-build development located along the Bruggesteenweg (N32), comprising 24 modern SME units. Thanks to its strategic location less than ten minutes from Roeselare, this business park offers an ideal base for companies aiming to grow in West Flanders.
Highly visible location along the Bruggesteenweg (N32)
The Bruggesteenweg (N32) is a key connecting road between Roeselare, Hooglede and Torhout. Its position along this busy access route ensures maximum visibility and excellent accessibility for clients, suppliers and employees. The proximity to Roeselare further strengthens the regional appeal of the project.
Flexible SME units tailored to your business
The business park consists of 24 newly built SME units, of which 7 units are currently still available. Available surface areas range from:
324 m² to 1,963 m²
Thanks to the modular design, units can be combined, allowing you to perfectly tailor the space to the current and future needs of your business. Business Park Steenpoort is suitable for both start-ups and established companies seeking expansion or relocation.
Why choose Business Park Steenpoort?
Highly visible location along the Bruggesteenweg (N32)
Less than 10 minutes from Roeselare
Possibility to combine units
Easily accessible for clients, suppliers and staff
Strategic location in West Flanders
Interested? Get in touch
Do you see Business Park Steenpoort as an opportunity for your business? Contact us today for more information about the SME units available for sale or lease. We will be happy to assist you in positioning your company at this promising location in Hooglede.

Location
Contact
Do you have a query about any of these units? Contact us without obligation.








![[:swvar:ufile:12:description:]](/swfiles/files/Logo-cookies.jpg?nc=1768983751)