Parc d activités Bapaume
Emplacement avec vue unique dans le Nord de la France
Projet en préparation
Statut.
PRÉPARATION DU PROJETAnnée de construction.
2024 - 2025Architecte.
Aavo ArchitectMaître d'ouvrage.
LCV Real EstateCatégorie.
PME - Bureaux - LogistiqueDécouvrez ce nouveau projet en préparation. Le parc d'activités Bapaume possède de nombreux atouts, par exemple, ce parc d'activités est située à côté de l'E15/A1 avec une très forte visibilité depuis l'autoroute. Ce terrain est situé au centre entre Lille et Paris, l'A1 est donc la connexion idéale.
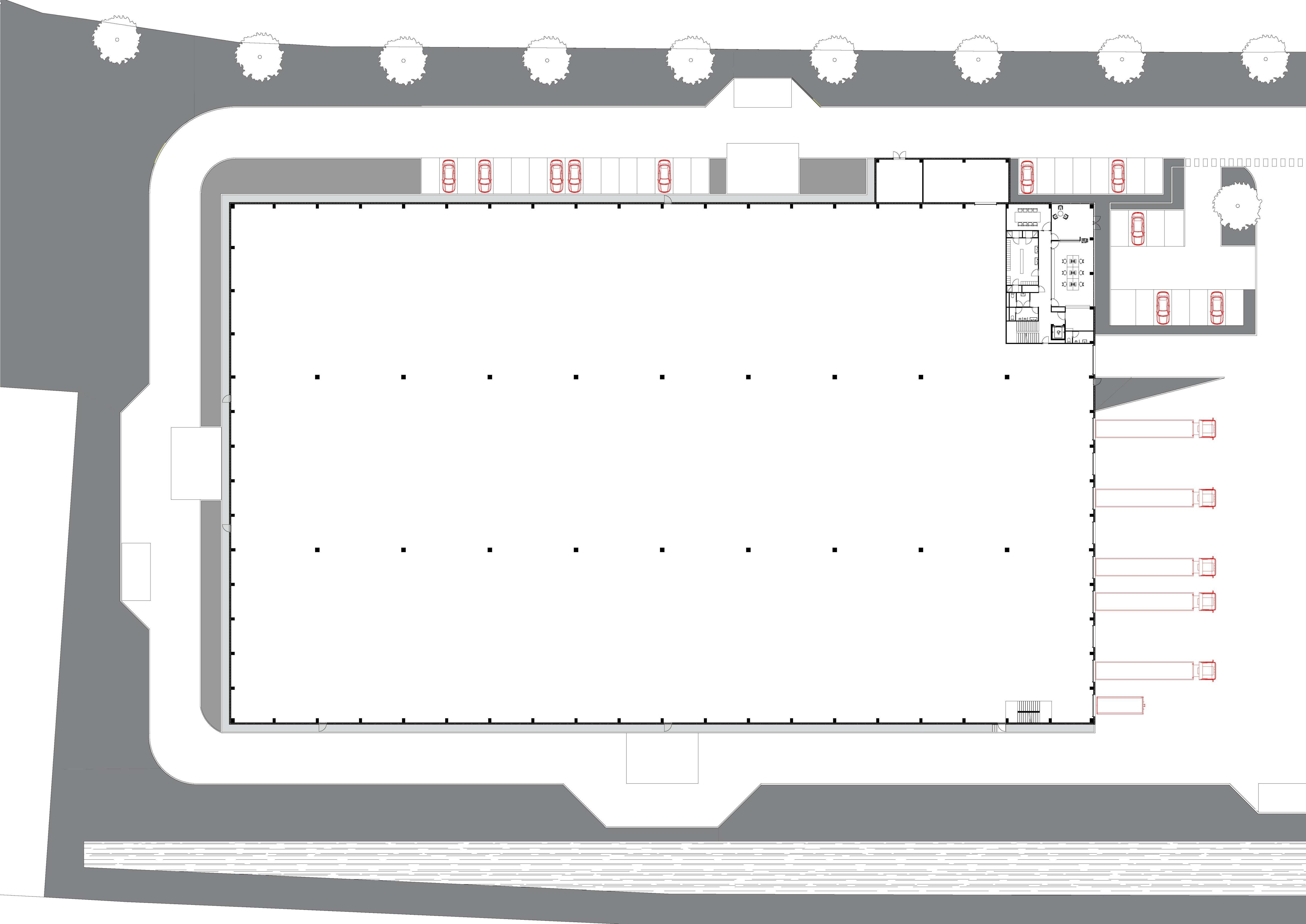
Ce nouveau projet de construction comprend des entrepôts pour la logistique, des bureaux et des unités PME.
Dans le bloc A se trouvent un entrepôt de 8.640 m² et un bureau de 242 m². Dans le bloc B se trouvent deux entrepôts de 4200 m² et 8550 m², ainsi que deux bureaux de 242 m² chacun. Le dernier bloc, bloc C, contient une combinaison de 1 entrepôt de 6834 m², un bureau de 242 m² et 8 unités PME d'une superficie entre 284 m² et 1154 m². Cette offre est disponible à la location comme à l'achat, afin que le client puisse choisir ce qui correspond le mieux à sa stratégie.
Ne manquez pas cette opportunité unique de faire partie de ce nouveau projet. Si vous êtes intéressé et souhaitez plus d’informations, veuillez nous contacter pour plus d’informations. Nous regarderons ensuite ensemble comment vous pouvez implanter votre entreprise dans ce lieu exceptionnel.




Localisation
Contact
Vous avez une question sur l’une de ces unités ? Contactez-nous sans engagement.










![[:swvar:ufile:12:description:]](/swfiles/files/Logo-cookies.jpg?nc=1761822529)