Parc d activités Lokeren E17/4
Nouveau projet de construction E17
Une visibilité unique en Flandre orientale
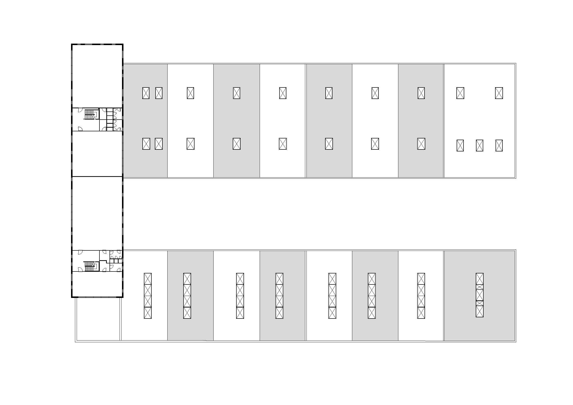
17 unités PME, bureaux et build-to-suit
Statut.
RealiséAnnée de construction.
2023 - 2025Architecte.
Tecro & KreaMaître d'ouvrage.
LCV Real EstateCatégorie.
Unités PME - BureauxSurface bâtie.
10.551 m²Vous recherchez l’emplacement idéal pour votre entreprise en Flandre orientale ? Découvrez nos unités PME et bureaux de haute qualité à Lokeren, situés avec une excellente visibilité depuis l'E17 et à moins de 10 minutes en voiture de l'entrée et de la sortie d'autoroute. Avec ces unités PME et bureaux, ce parc d'activités offre une accessibilité et une visibilité idéales pour votre entreprise.
Nos unités varient en superficie de 144 m² à 1 605 m², ce qui signifie qu'il existe une solution adaptée à chaque besoin. Au premier et deuxième étage vous trouverez des bureaux d'une superficie variant entre 92m² et 366m². Ne manquez pas cette opportunité de positionner votre entreprise dans un emplacement stratégique avec un accès direct aux grands axes routiers.
N'hésitez pas à nous contacter pour plus d'informations sur cette opportunité unique de développer votre entreprise à Lokeren.



Localisation
Contact














![[:swvar:ufile:12:description:]](/swfiles/files/Logo-cookies.jpg?nc=1773312188)