Parc d'activités De Vier Kronen
Emplacement avec une visibilité exceptionnelle en Flandre orientale
14 uniités PME et 2 showrooms
Projet en préparation
Statut.
En préparationAnnée de construction.
2026Architecte.
Stranger ArchitectMaître d'ouvrage.
LCV Real EstateCatégorie.
Unités PME - Salle d'expositionSurface bâtie.
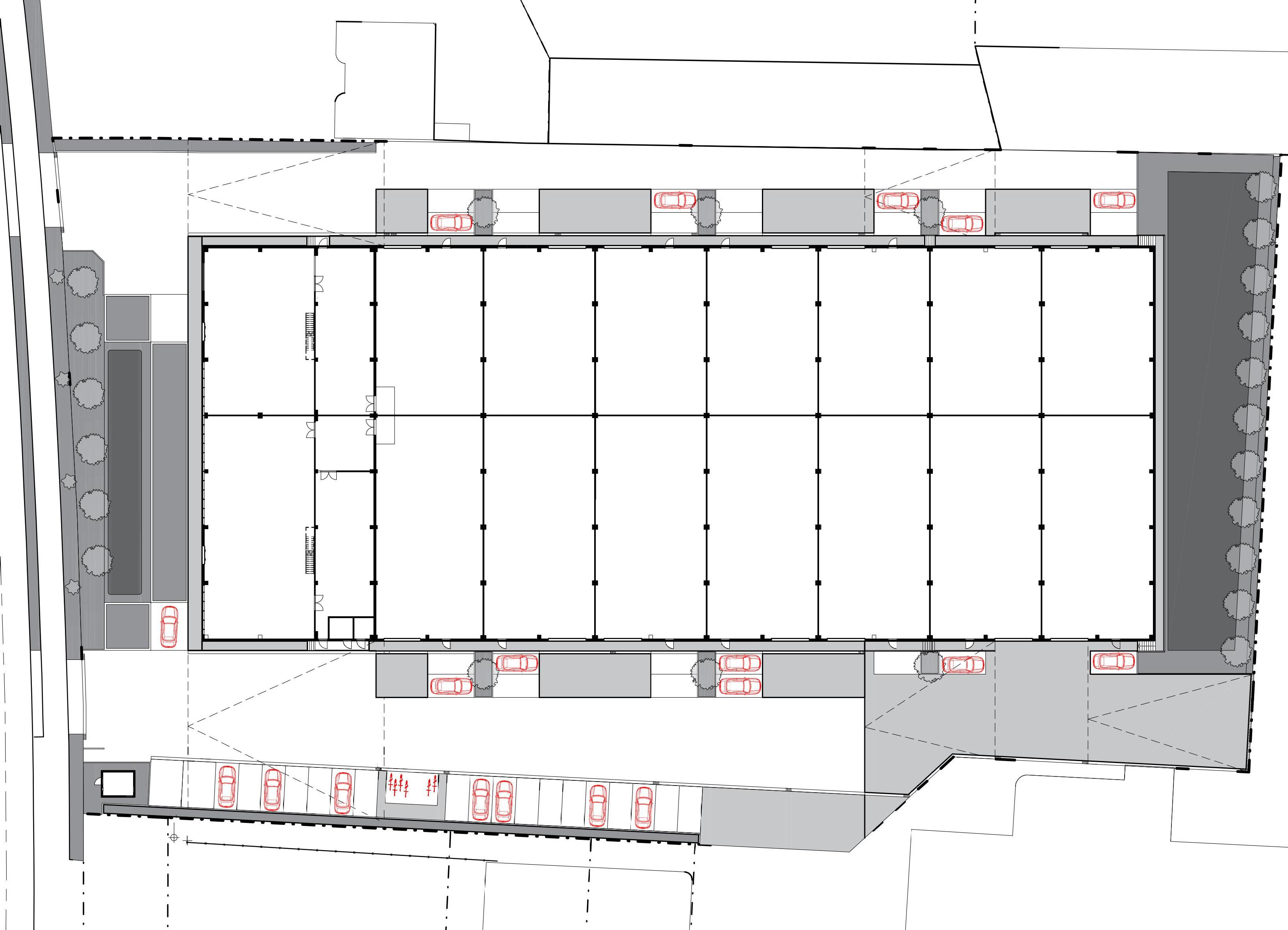
4.356 m²Le nouveau parc d'activités pour PME, situé sur la Viermaartlaan à Renaix, en Flandre orientale, offre un emplacement stratégique aux entrepreneurs à la recherche d'espaces commerciaux flexibles et modernes. Ce projet comprend 14 unités PME de qualité avec des surfaces brutes de 213 m² à 297 m².
Les unités sont conçues dans un souci de qualité et de fonctionnalité, composées d'un espace commercial ouvert sans colonnes intermédiaires, qui offre une flexibilité optimale. En fonction des besoins de l'entreprise, un espace commercial ou un bureau séparé peut être ajouté. À l'avant du parc d'activités se trouvent également un showroom et un entrepôt de collecte, spécifiquement destinés aux activités de vente en gros. Le showroom dispose d'une mezzanine de 150 m², tandis que la zone de collection contient une mezzanine de 112,50 m², qui offre une capacité de stockage supplémentaire.
Ces unités conviennent aux entreprises de divers secteurs, notamment le commerce de gros, le stockage, la production et la distribution. Il est rappelé aux locataires/acheteurs qu’ils sont responsables du respect de toutes les exigences en matière de permis environnemental.
Les unités sont proposées à la location ou à la vente dans leur coque, conformément aux conceptions du célèbre cabinet d'architectes Stranger Architect et aux spécifications techniques que l'on retrouve dans la brochure. Une finition personnalisée peut être fournie sur demande pour répondre aux besoins spécifiques de votre entreprise.
Localisation
Contact
Vous avez une question sur l’une de ces unités ? Contactez-nous sans engagement.











![[:swvar:ufile:12:description:]](/swfiles/files/Logo-cookies.jpg?nc=1761822529)