Parc d'activité Expoline
Stratégiquement situé
Flexible d’utilisation / Polyvalent
Orienté vers l’avenir
Statut.
CommercialisationAnnée de construction.
2026-2027Architecte.
ATLRMaître d'ouvrage.
LCV Real EstateCatégorie.
Unités PME - BureauFootprint.
6.138 m²Découvrez votre nouvel espace d’activité à Tessenderlo : Un parc d’entreprises innovant au cœur du Limbourg
Situé dans la Havenlaan à Tessenderlo, au centre de la province du Limbourg, un tout nouveau parc d’entreprises voit le jour. Ce projet offre aux sociétés l’espace idéal pour croître et innover. Grâce à son emplacement stratégique, à proximité d’axes routiers importants tels que l’E313, il constitue une base parfaite pour les entrepreneurs actifs tant au niveau national qu’international. De plus, vous bénéficiez d’une situation avantageuse avec des liaisons rapides vers des villes telles que Hasselt, Anvers et Bruxelles.
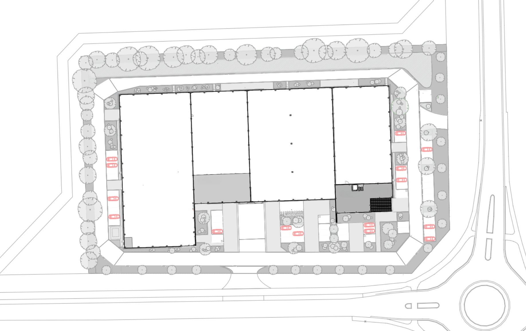
Le projet se compose de trois entrepôts spacieux et fonctionnels, allant de 1.007 m² à 2.858 m². Conçus avec une structure ouverte et un nombre minimal de colonnes intermédiaires, ils conviennent parfaitement à un large éventail d’usages, tels que la production, le stockage ou la distribution. Chaque entrepôt peut également être complété par un espace commercial ou de bureaux séparé, en fonction de vos besoins spécifiques.
Ces unités sont idéales pour des entreprises aux activités variées. Commerce de gros, production, stockage ou distribution : les possibilités sont infinies.
Atouts supplémentaires et flexibilité
L’entrepôt 1 comprend en outre un espace de bureaux spacieux de 541 m² avec une terrasse accueillante qui ajoute une dimension de confort supplémentaire. Il s’agit donc d’un lieu de travail attractif pour les entreprises recherchant une combinaison d’espace de bureaux et d’entrepôt.
Les entrepôts et espaces de bureaux sont proposés en état casco, vous laissant toute liberté pour adapter les finitions intérieures à vos souhaits. Que vous optiez pour la location ou l’achat, nous collaborons avec le bureau d’architectes renommé ATLR de Beverlo afin de créer une solution sur mesure parfaitement adaptée à vos activités.
Pourquoi choisir ce parc d’entreprises ?
Avec son infrastructure de qualité, ses possibilités d’aménagement flexibles et son emplacement central à Tessenderlo, ce nouveau parc d’entreprises constitue la solution idéale pour les sociétés à la recherche d’un site d’implantation tourné vers l’avenir. Que vous souhaitiez croître, innover ou optimiser vos activités logistiques, ces entrepôts vous offrent tout l’espace et les possibilités nécessaires pour atteindre vos objectifs.


Localisation
Contact
Vous avez une question sur l’une de ces unités ? Contactez-nous sans engagement.











![[:swvar:ufile:12:description:]](/swfiles/files/Logo-cookies.jpg?nc=1773312188)