Parc d'activités The Edge
Parc d'activités The Edge
À côté de l'E17 Gand-Courtrai
Actuellement, 80 % est déjà vendu/loué
Statut.
En coursAnnée de construction.
2024 - 2026Architecte.
Piet Bailyu - Project ArchitectsMaître d'ouvrage.
LCV Real EstateCatégorie.
Entrpôt - BureauxSurface bâtie.
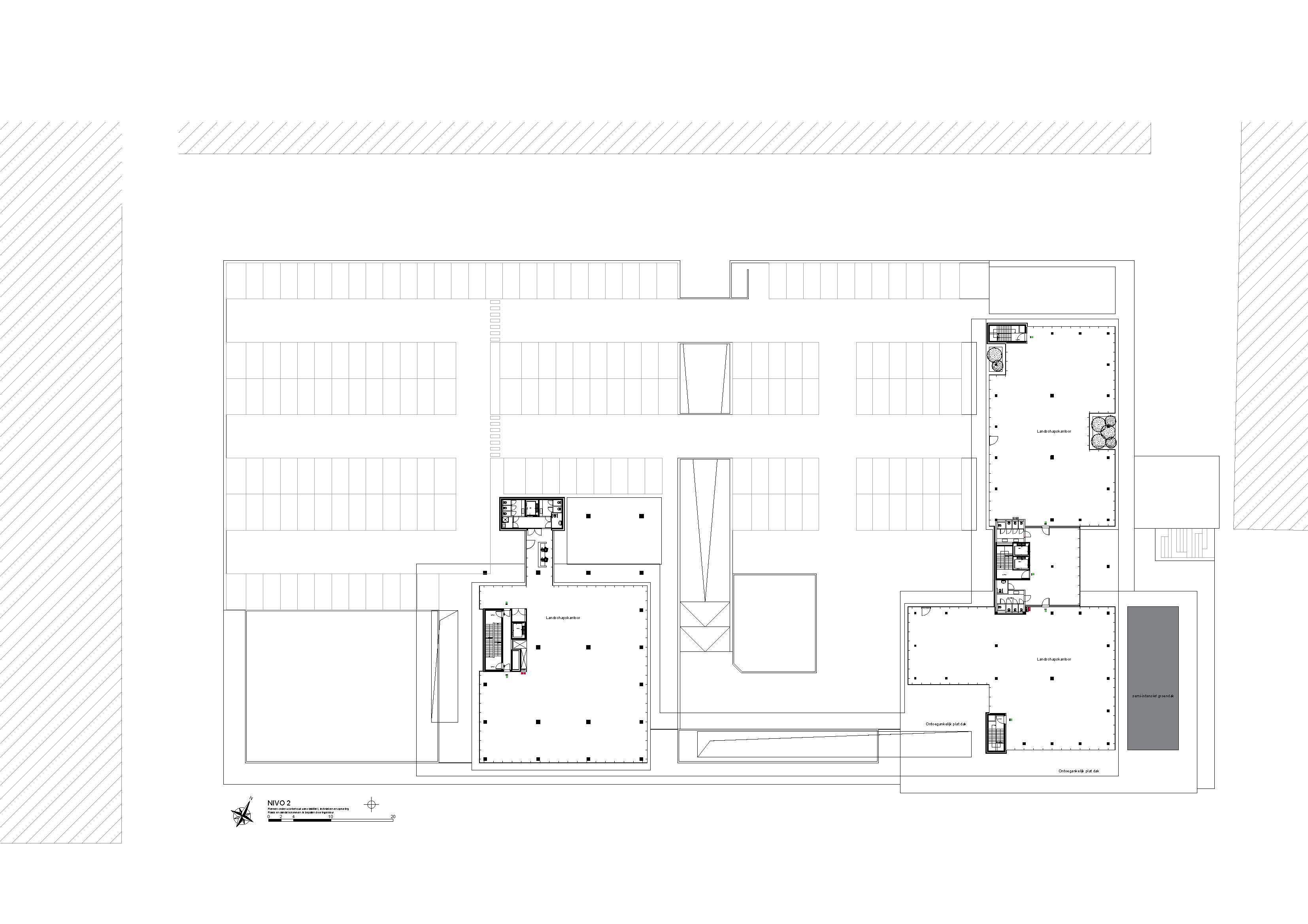
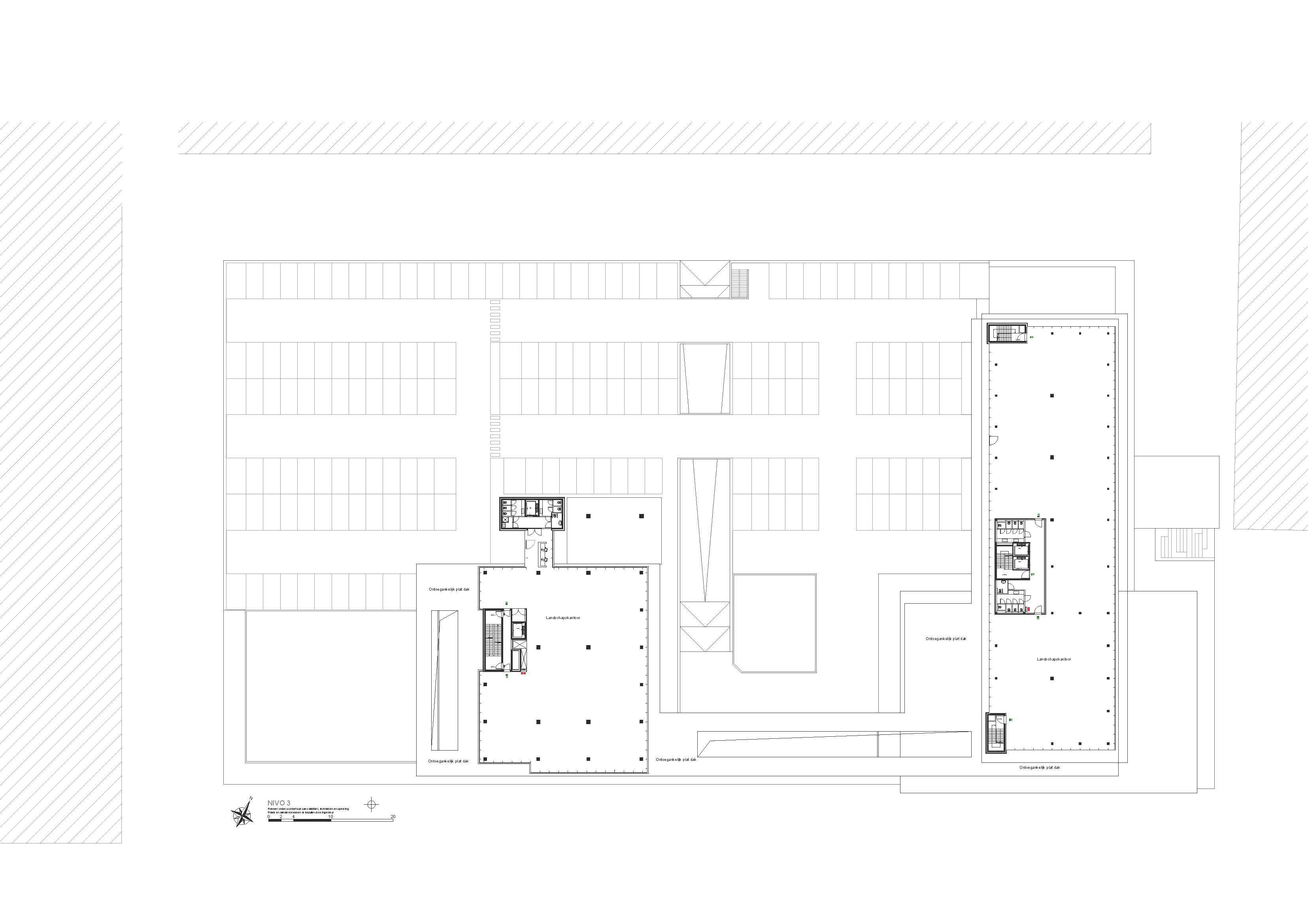
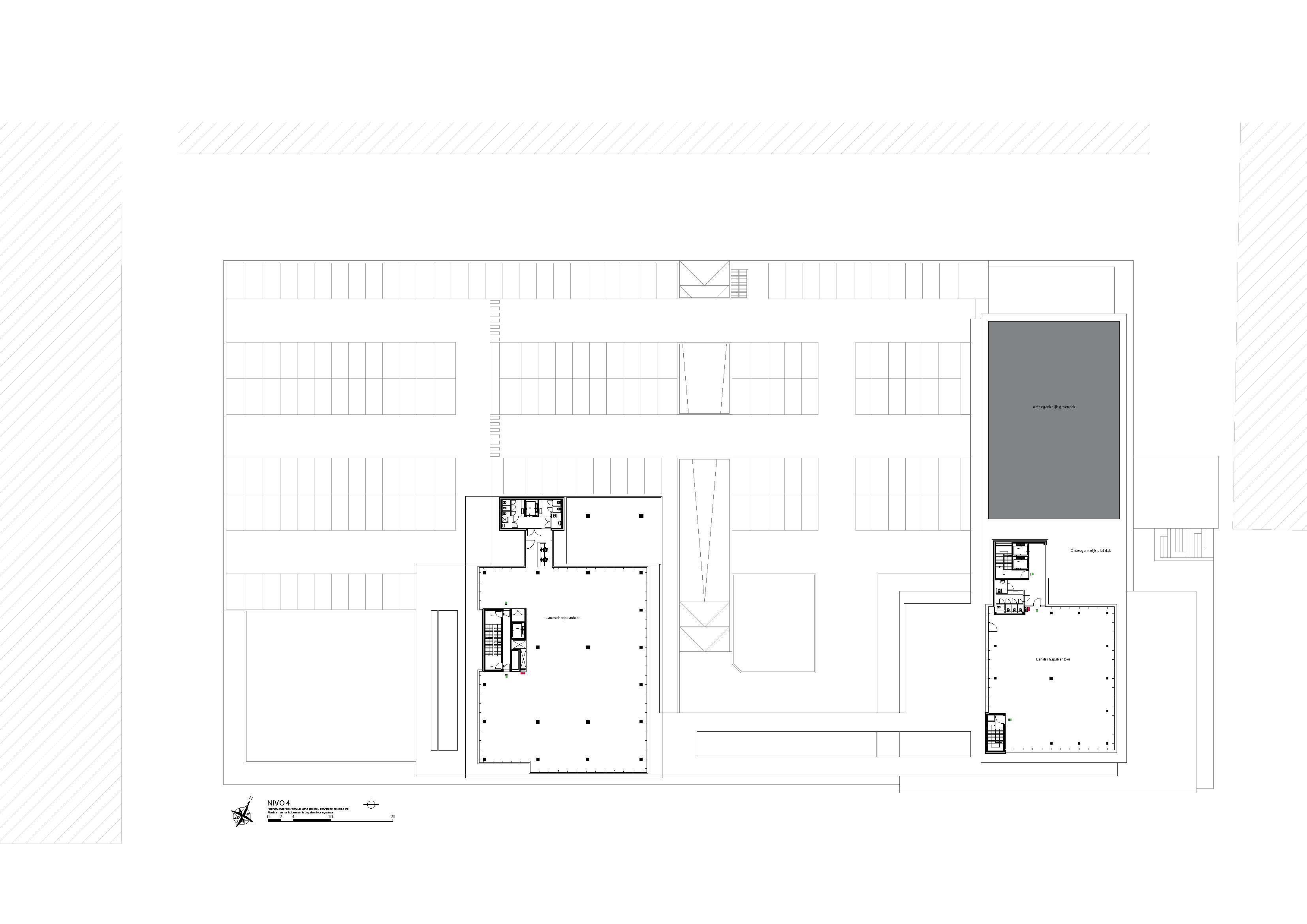
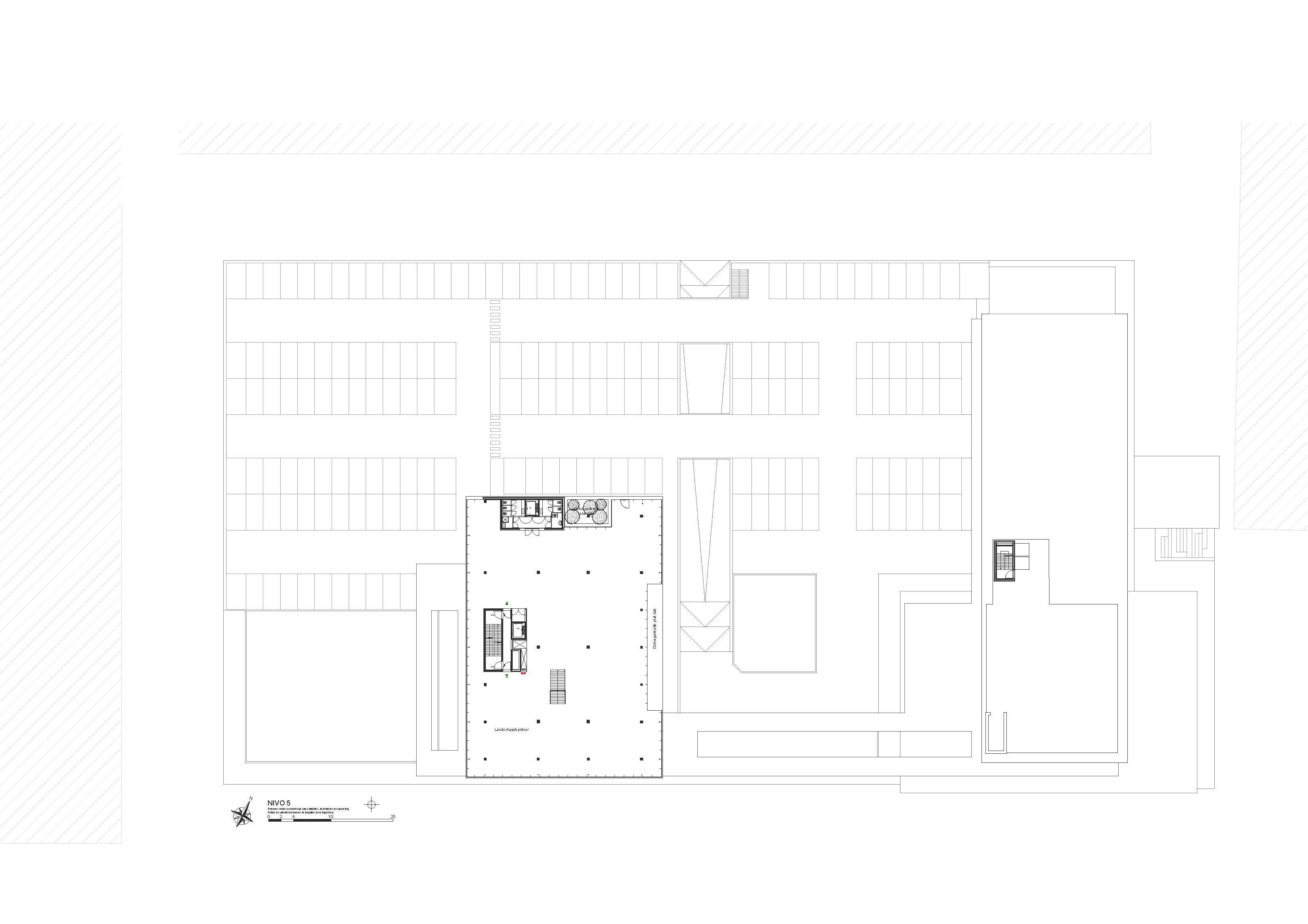
21.345 m²Parc d'activités The Edge : Un nouveau point de repère le long de l'E17
L'impressionnant parc d'activités The Edge est construit à la frontière de Waregem et Deerlijk, le long de l'E17 Gand-Courtrai. Ce projet incarne l’avenir de l’immobilier commercial. Avec ses lignes modernes et épurées, son apparence intemporelle et ses techniques économes en énergie, The Edge établira sans aucun doute une nouvelle norme.
Le parc d'activités offre une situation exceptionnellement visible le long de l'un des axes de circulation les plus fréquentés de Belgique. Avec près de 40 mètres de haut, The Edge sera le bâtiment le plus haut de la région, ce qui en fera un point de repère marquant dans la région.
The Edge se compose de deux tours de bureaux et de six entrepôts, spécialement conçus pour les entreprises actives dans le secteur de la construction. La tour de bureaux A comporte quatre étages, tandis que la tour de bureaux B, composée de sept étages et d'un showroom de 400 m², est encore plus impressionnante. Les entrepôts varient en superficie de 705 m² à 3.693 m² et sont construits sans colonnes intermédiaires, afin de pouvoir être optimisés pour la production et/ou le stockage des stocks.
Actuellement, plus de 80 % des espaces disponibles sont déjà occupés, mais il reste encore des entrepôts et des bureaux à louer. Vous souhaitez en savoir plus sur cette opportunité unique ? Contactez-nous et découvrez comment votre entreprise peut prospérer dans cet emplacement.








Localisation
Contact
Vous avez une question sur l’une de ces unités ? Contactez-nous sans engagement.












![[:swvar:ufile:12:description:]](/swfiles/files/Logo-cookies.jpg?nc=1761822529)