Parc d'activités The Edge
Parc d'activités The Edge
À côté de l'E17 Gand-Courtrai
Actuellement, 80 % est déjà vendu/loué
Statut.
En coursAnnée de construction.
2024 - 2026Architecte.
Piet Bailyu - Project ArchitectsMaître d'ouvrage.
LCV Real EstateCatégorie.
Entrpôt - BureauxSurface bâtie.
21.345 m²Parc d’activités The Edge : un nouveau landmark le long de l’E17
Vous êtes à la recherche d’un espace professionnel offrant une visibilité maximale et une localisation stratégique de premier ordre ? Le parc d’activités The Edge s’impose comme le nouveau projet de référence pour les entreprises en Flandre occidentale. Situé le long de l’E17, à la frontière entre Waregem et Deerlijk, ce parc d’activités innovant allie architecture contemporaine, technologies durables et espaces professionnels flexibles, adaptés aux besoins des entrepreneurs d’aujourd’hui.
Grâce à son implantation le long de l’E17, l’un des axes routiers les plus fréquentés entre Gand et Courtrai, The Edge bénéficie d’une accessibilité et d’une visibilité exceptionnelles. Avec une hauteur de près de 40 mètres, le bâtiment est le plus haut de la région et constitue un véritable repère architectural, visible quotidiennement par des milliers d’automobilistes. Sa situation centrale, à la limite de Waregem et Deerlijk, garantit également un accès aisé pour le personnel, les clients et les fournisseurs.
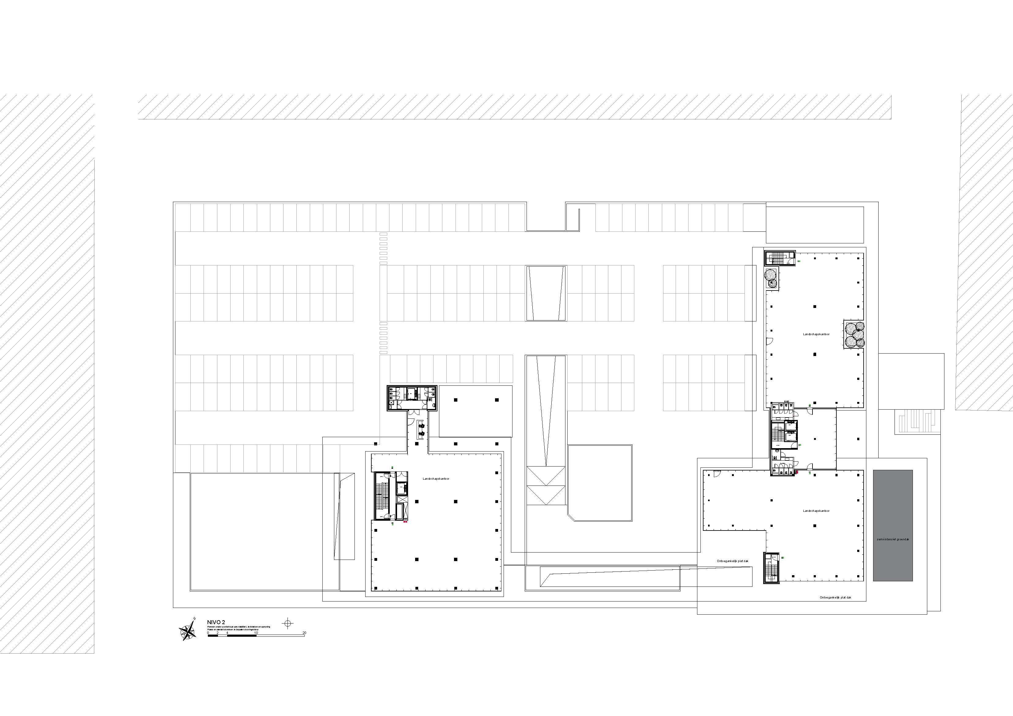
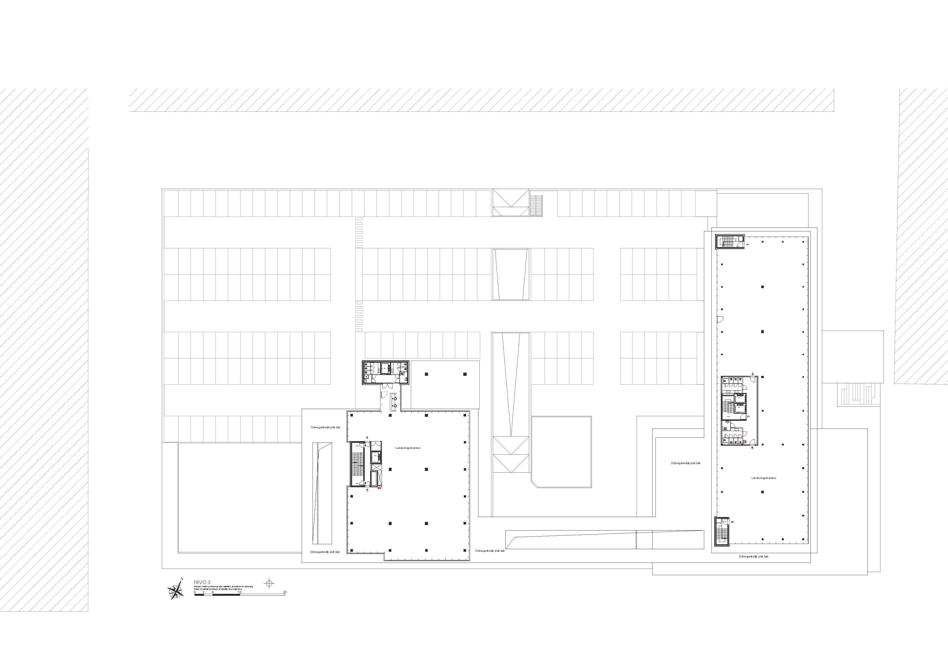
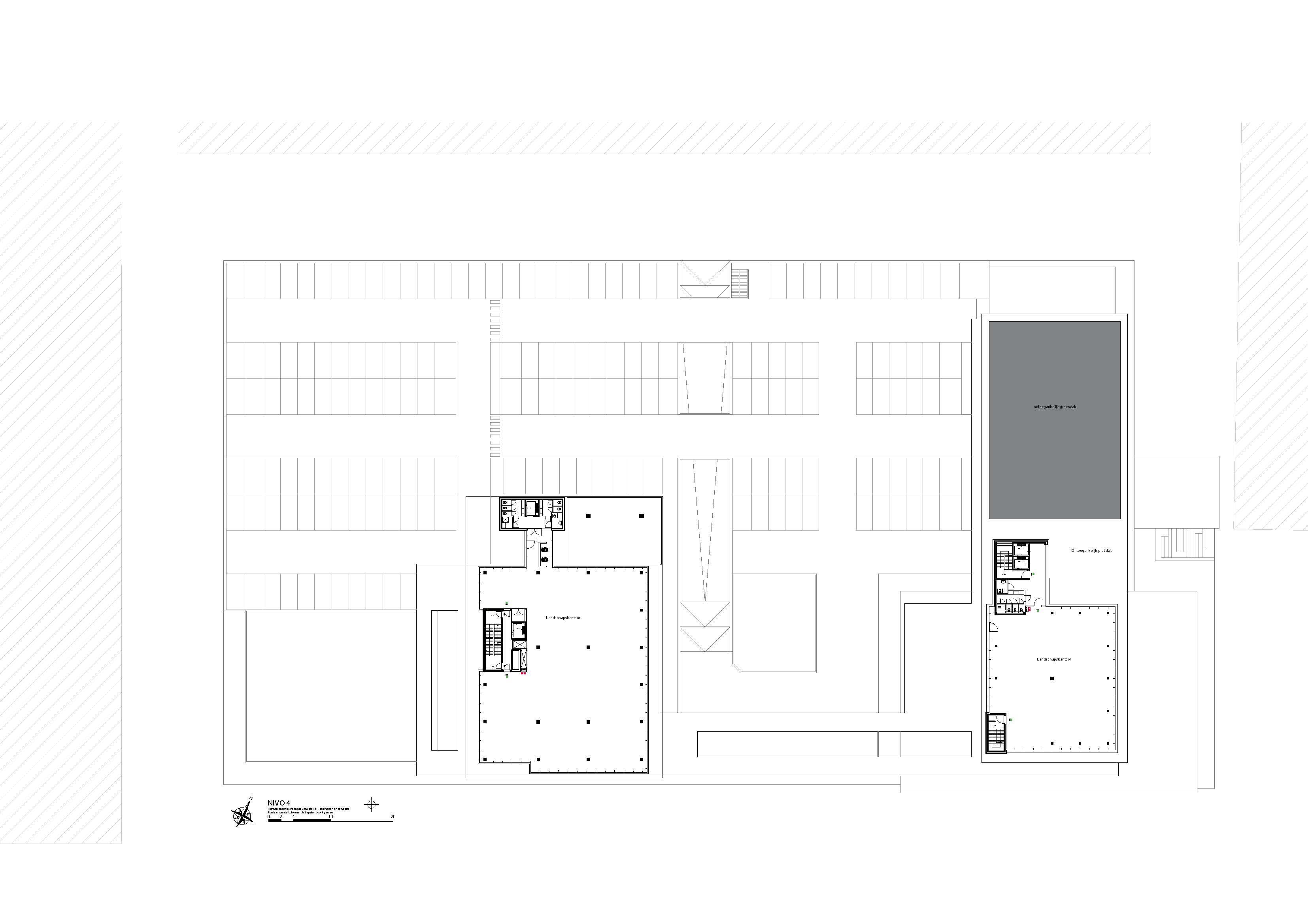
The Edge est bien plus qu’un simple bâtiment : c’est un parc d’activités tourné vers l’avenir, combinant intelligemment bureaux, showrooms et entrepôts. Les espaces ont été conçus dans une optique de flexibilité et de croissance, et répondent parfaitement aux besoins des entreprises actives notamment dans les secteurs de la construction, de la production et des services.
La tour A compte quatre étages et dispose d’un showroom spacieux d’environ 400 m².
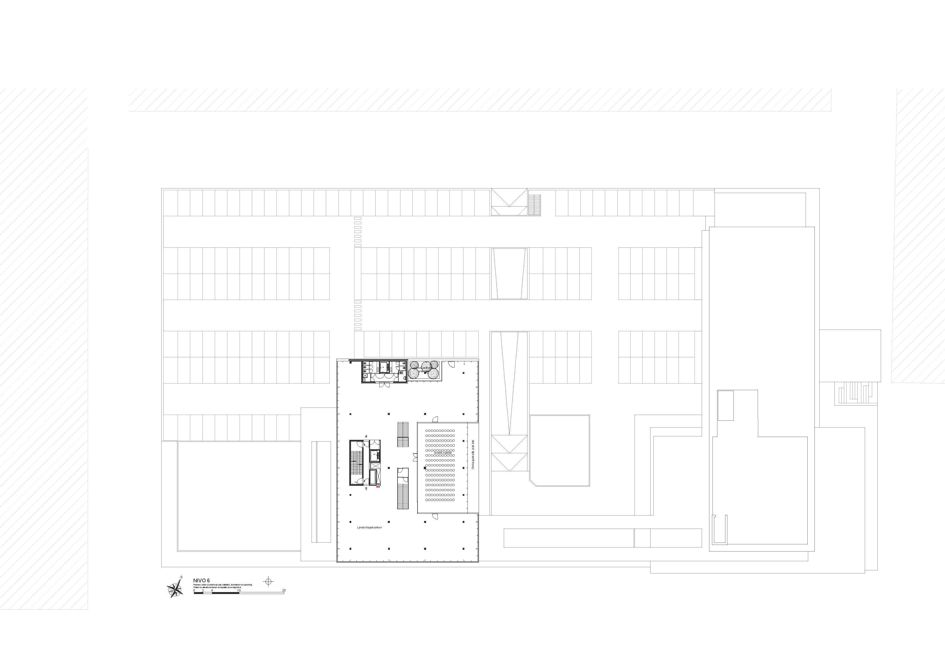
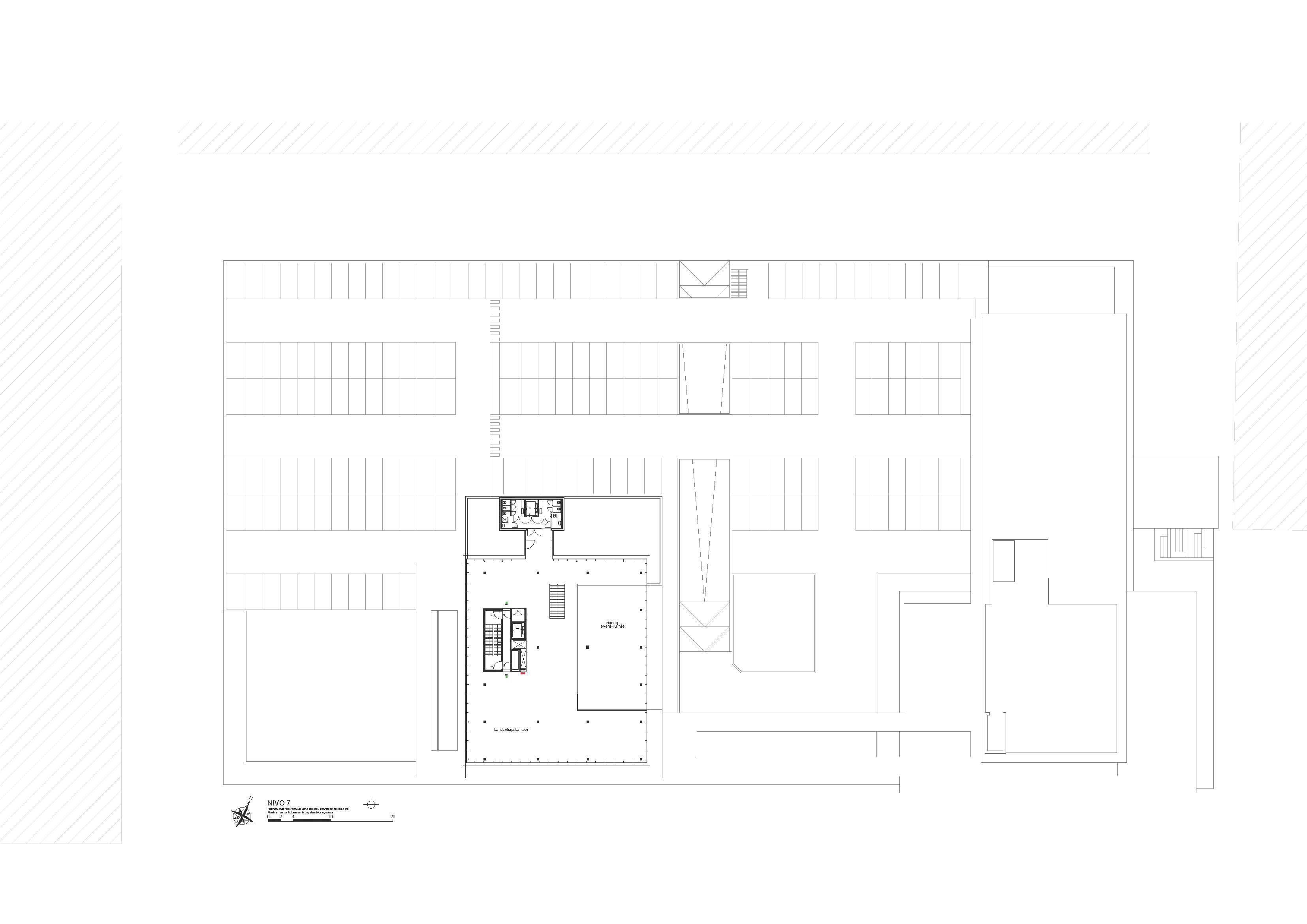
La tour B, avec ses sept étages, propose des espaces de bureaux représentatifs pour des entreprises ambitieuses en pleine croissance.
Le projet comprend également six unités PME (entrepôts), d’une superficie comprise entre environ 705 m² et 3.693 m². Grâce à un nombre limité de colonnes intermédiaires, ces unités sont modulables et adaptées à la production, au stockage ou à la distribution.
La durabilité et l’efficacité sont au cœur de la conception de The Edge. Des techniques à haute performance énergétique, une utilisation intelligente de l’espace et une architecture épurée et intemporelle garantissent un environnement de travail durable et performant, prêt pour l’avenir.
L’intérêt pour le parc d’activités The Edge est très élevé : plus de 80 % du projet est déjà occupé.
Actuellement, seules les unités suivantes sont encore disponibles :
Étage de bureaux 4
Étage de bureaux 7
Entrepôt 2A
Entrepôt 4
Vous souhaitez implanter votre entreprise sur un site d’exception le long de l’E17 et faire partie de ce parc d’activités unique ? Contactez-nous dès aujourd’hui pour plus d’informations ou pour une visite sur place.








Localisation
Contact
Vous avez une question sur l’une de ces unités ? Contactez-nous sans engagement.















![[:swvar:ufile:12:description:]](/swfiles/files/Logo-cookies.jpg?nc=1773312188)