Parc d'activités Rollare
Unités PME bénéficiant d'un excellent emplacement en Flandre occidentale.
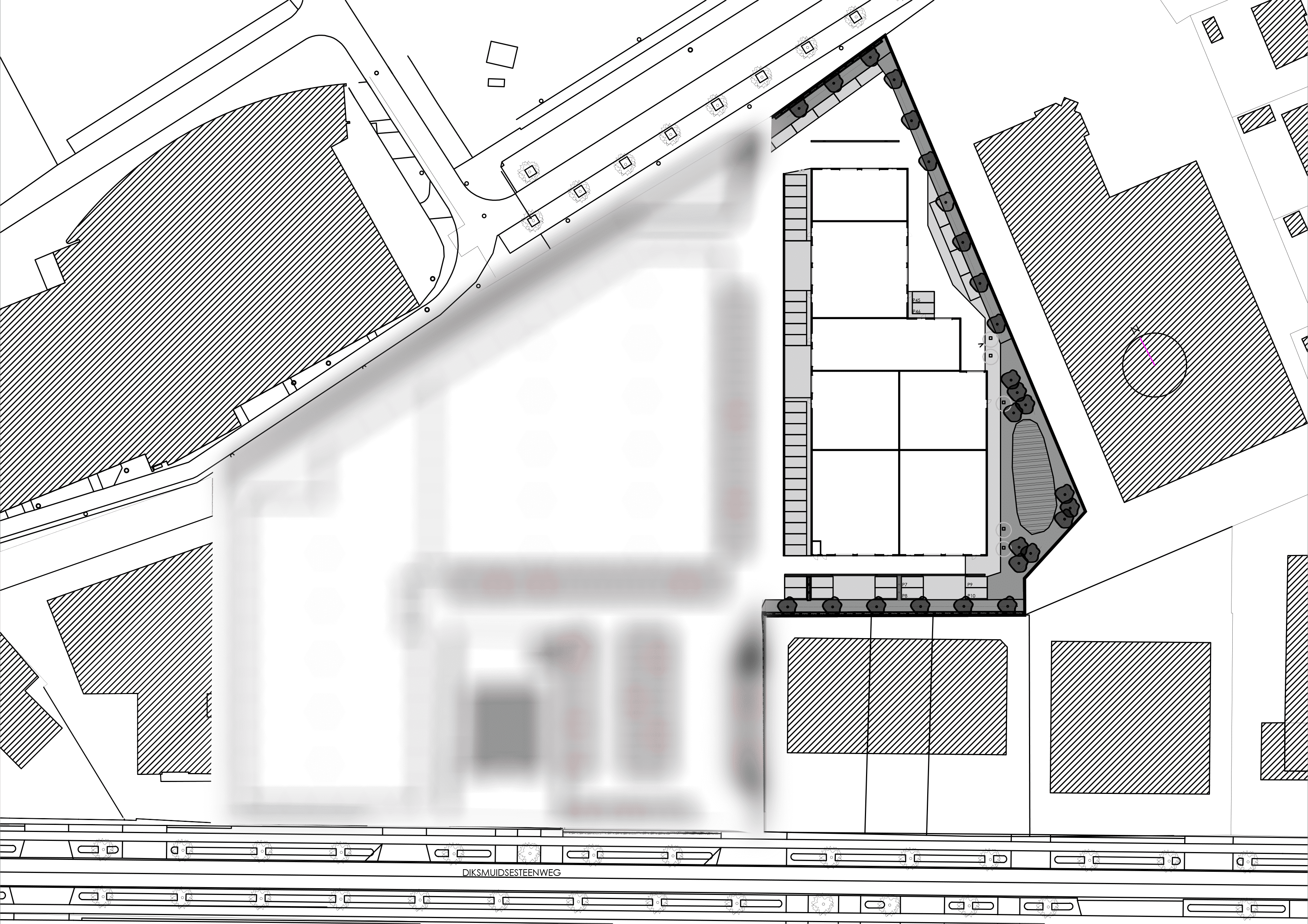
Idéalement situé à 400 mètres du périphérique de Roulers.
Projet en préparation.
Statut.
Préparation du projetAnnée de construction.
2025-2026Architecte.
Geldof architectenMaître d'ouvrage.
LCV Real EstateCatégorie.
Unités PME - BTSFootprint.
9.162 m²Unités PME à vendre à Roulers | Immobilier d'entreprise le long de la Diksmuidsesteenweg
Vous recherchez de l’immobilier d’entreprise à Roulers ? Découvrez nos unités PME à vendre le long de la Diksmuidsesteenweg, un projet neuf idéalement situé au cœur de la Flandre-Occidentale. Ces unités PME à Roulers proposent des surfaces flexibles de 264 m² à 484 m², avec possibilité de combiner plusieurs unités selon vos besoins.
Situation stratégique près du ring de Roulers
Ce parc d’activités est situé sur un emplacement très visible le long de la Diksmuidsesteenweg, l’un des axes d’accès principaux de Roulers. À seulement 400 mètres, vous rejoignez le ring de Roulers (R32), avec un accès rapide vers le centre-ville, la zone portuaire et l’autoroute E403 (direction Courtrai, Bruges et Gand). Un emplacement stratégique pour les entreprises qui recherchent visibilité, accessibilité et connectivité régionale.
Unités PME modernes et modulables
Les unités disponibles à Roulers varient de 264 m² à 484 m². Grâce à leur conception modulaire, il est possible de regrouper plusieurs unités pour obtenir de plus grandes surfaces. Que vous cherchiez un espace de production, de stockage ou une unité commerciale, ce projet répond à vos besoins.
Les travaux préparatoires ont déjà commencé, vous offrant l’opportunité d’investir dès aujourd’hui dans un emplacement d’avenir. Ce projet neuf constitue une excellente opportunité pour les entreprises qui souhaitent se développer, se relocaliser ou investir dans un bien de qualité.
Pourquoi choisir ce projet à Roulers ?
Emplacement à haute visibilité sur un axe fréquenté
À seulement 400 m du ring de Roulers
Surfaces flexibles de 264 m² à 484 m²
Combinaison possible des unités
Idéal pour production, stockage ou commerce
Projet neuf avec finitions modernes
Intéressé ? Contactez-nous sans engagement
Vous souhaitez implanter votre entreprise à Roulers ou investir dans de l’immobilier d’entreprise en Flandre-Occidentale ? Ne manquez pas cette occasion de faire partie d’un nouveau parc d’activités prometteur. Contactez LCV Real Estate pour recevoir plus d’informations ou planifier une visite du site.

Localisation
Contact
Vous avez une question sur l’une de ces unités ? Contactez-nous sans engagement.










![[:swvar:ufile:12:description:]](/swfiles/files/Logo-cookies.jpg?nc=1773312188)