Bedrijvenpark Steenpoort
Unieke KMO-units met zichtlocatie in West-Vlaanderen
Project in voorbereiding
Status.
In uitvoeringBouwjaar.
2024-2025Architect.
Architectenbureau SchepensOpdrachtgever.
LCV Real EstateCategorie.
KMO unitsFootprint.
7.738 m²KMO-units te koop of te huur in Hooglede | Bedrijvenpark Steenpoort
Op zoek naar een KMO-unit in Hooglede met uitstekende visibiliteit en bereikbaarheid? Ontdek bedrijvenpark Steenpoort, een nieuwbouwproject langs de Bruggesteenweg (N32) met 24 moderne KMO-units. Dankzij de strategische ligging nabij Roeselare, minder dan tien minuten rijden van het project, biedt deze site alles wat een onderneming nodig heeft om te groeien.
Toplocatie langs de Bruggesteenweg in Hooglede
De Bruggesteenweg (N32) is een belangrijke verkeersader die Hooglede met Roeselare en Torhout verbindt. Door de ligging langs deze goed bereikbare invalsweg geniet het bedrijvenpark van maximale visibiliteit en een vlotte bereikbaarheid voor klanten, leveranciers en personeel. De nabijheid van Roeselare maakt dit project extra aantrekkelijk voor bedrijven die actief zijn in de regio West-Vlaanderen.
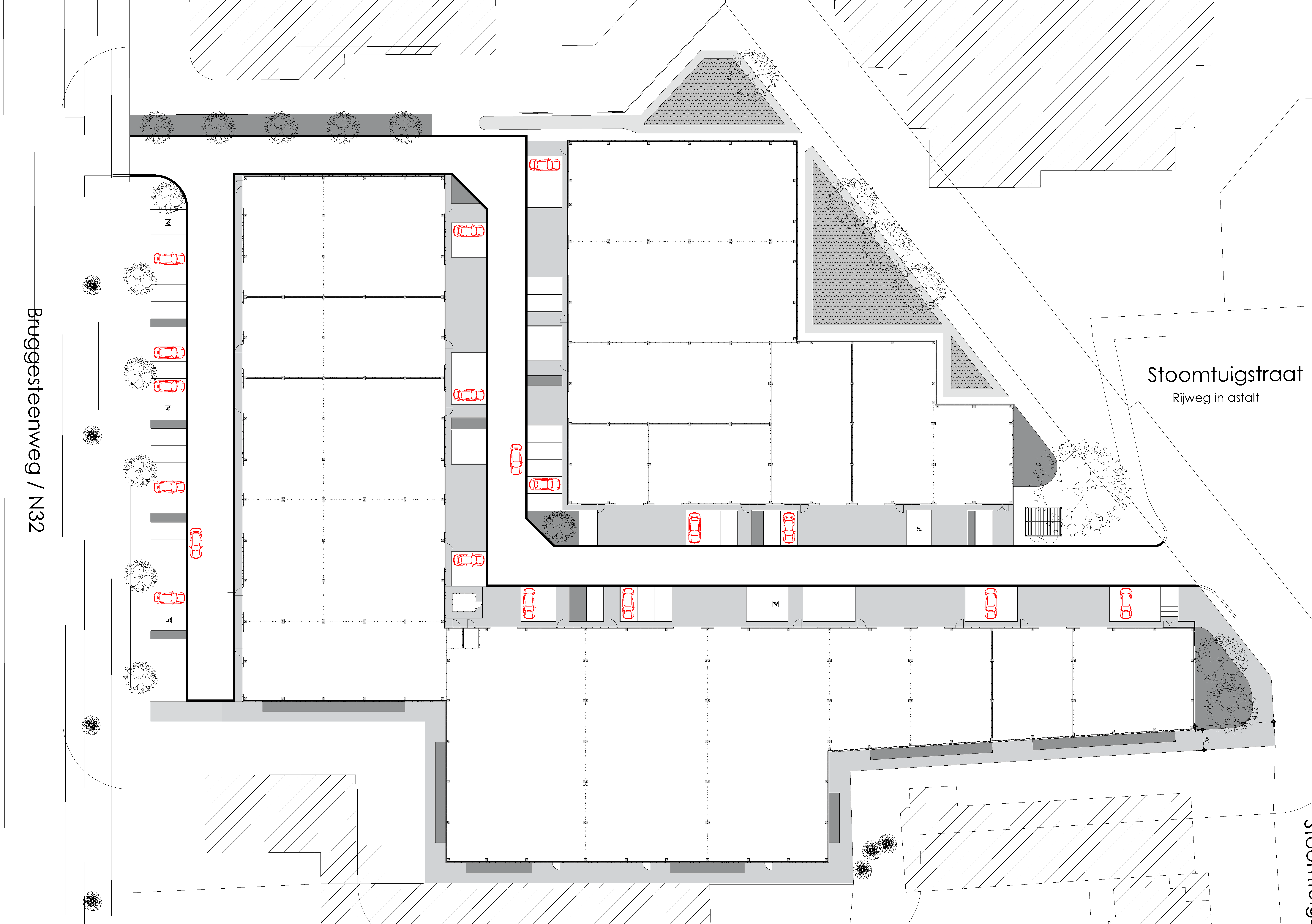
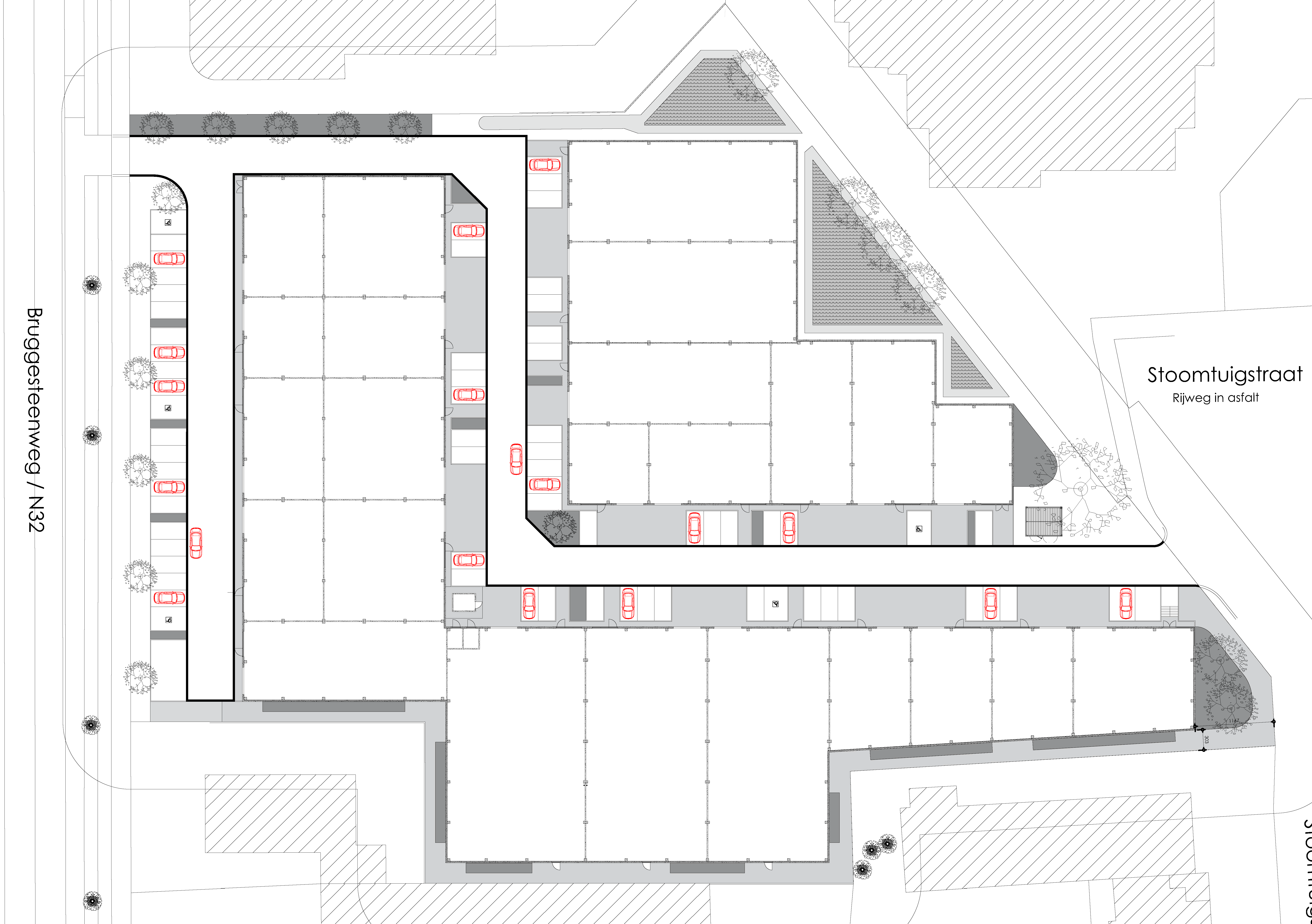
24 KMO-units op maat van uw onderneming
Het project bestaat uit 24 nieuwbouw KMO-units met oppervlaktes die variëren van 144 m² tot 720 m². Dankzij de flexibele indeling zijn combinaties van units mogelijk, waardoor u de ruimte perfect kunt afstemmen op de noden van uw bedrijf. Of u nu een start-up bent die klein wil beginnen of een gevestigde onderneming op zoek naar uitbreiding: bedrijvenpark Steenpoort biedt een toekomstgerichte oplossing.
De bouw van dit nieuwe bedrijvenpark loopt ten einde, dus dit is het ideale moment om uw interesse kenbaar te maken en een voorsprong te nemen in de commercialisatie van dit project.
Waarom kiezen voor bedrijvenpark Steenpoort in Hooglede?
Zichtlocatie langs de Bruggesteenweg (N32)
Slechts 10 minuten van het centrum van Roeselare
24 nieuwbouw KMO-units van 144 m² tot 720 m²
Units kunnen gecombineerd worden
Vlot bereikbaar voor klanten, leveranciers en personeel
Geschikt voor productie, opslag of commerciële activiteiten
Strategische ligging in West-Vlaanderen
Contacteer ons vrijblijvend voor meer info
Ziet u in dit project een opportuniteit voor uw onderneming? Neem dan vandaag nog contact op met LCV Real Estate. We bespreken graag hoe u uw bedrijf kan positioneren op deze veelbelovende locatie aan de rand van Roeselare.

Locatie
Contact








![[:swvar:ufile:12:description:]](/swfiles/files/Logo-cookies.jpg?nc=1761822529)