Bedrijvenpark The Edge
Nieuwbouwproject The Edge
Strategische ligging langs de E17 (Gent–Kortrijk)
Reeds 80% van het project succesvol ingevuld
Status.
UitvoeringBouwjaar.
2024 - 2026Architect.
Piet Bailyu - Project ArchitectsOpdrachtgever.
LCV Real EstateCategorie.
Loods - KantorenFootprint.
21.345 m²Bedrijvenpark The Edge: een nieuw landmark langs de E17
Bent u op zoek naar een bedrijfsruimte met maximale zichtbaarheid en een strategische topligging? Bedrijvenpark The Edge profileert zich als hét nieuwe referentieproject voor ondernemingen in Zuid-West-Vlaanderen. Gelegen langs de E17, op de grens van Waregem en Deerlijk, verenigt dit vooruitstrevende bedrijvenpark hedendaagse architectuur, duurzame technologieën en flexibele bedrijfsruimtes, afgestemd op de noden van moderne ondernemers.
Dankzij de ligging langs de E17, een van de drukst bereden verkeersassen van België tussen Gent en Kortrijk, geniet The Edge van een uitzonderlijke bereikbaarheid en visibiliteit. Met een hoogte van bijna 40 meter is het gebouw het hoogste in de regio en vormt het een opvallend architecturaal landmark dat dagelijks door duizenden voorbijrijdende voertuigen wordt gezien. De centrale locatie op de grens van Waregem en Deerlijk maakt het bedrijvenpark bovendien vlot toegankelijk voor medewerkers, klanten en leveranciers.
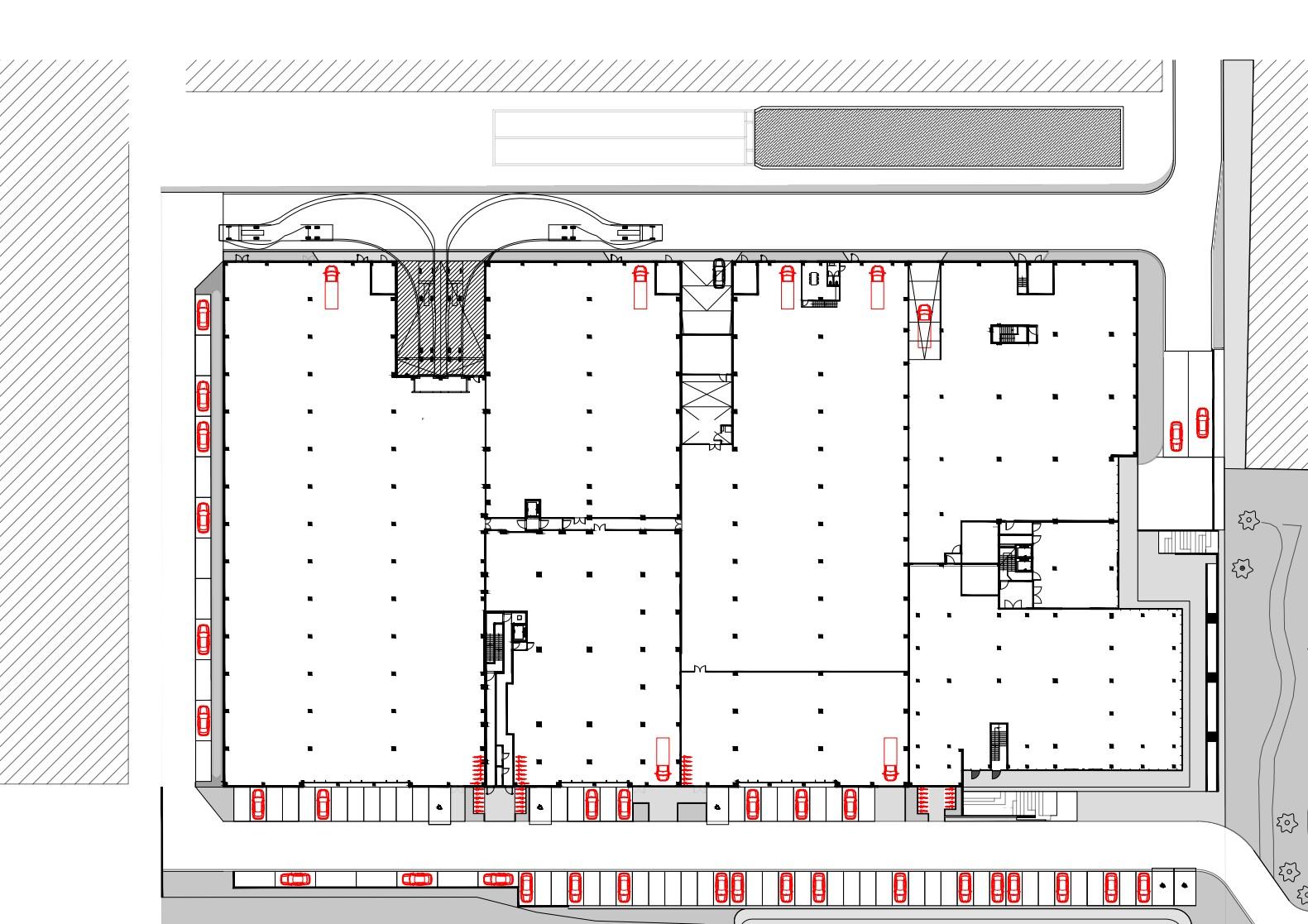
The Edge is meer dan een gebouw: het is een toekomstgericht bedrijvenpark waar kantoren, showrooms en loodsen op een slimme manier worden gecombineerd. De ruimtes zijn ontworpen met het oog op flexibiliteit en groei, en sluiten perfect aan bij de behoeften van ondernemingen uit onder meer de bouw-, productie- en dienstensector.
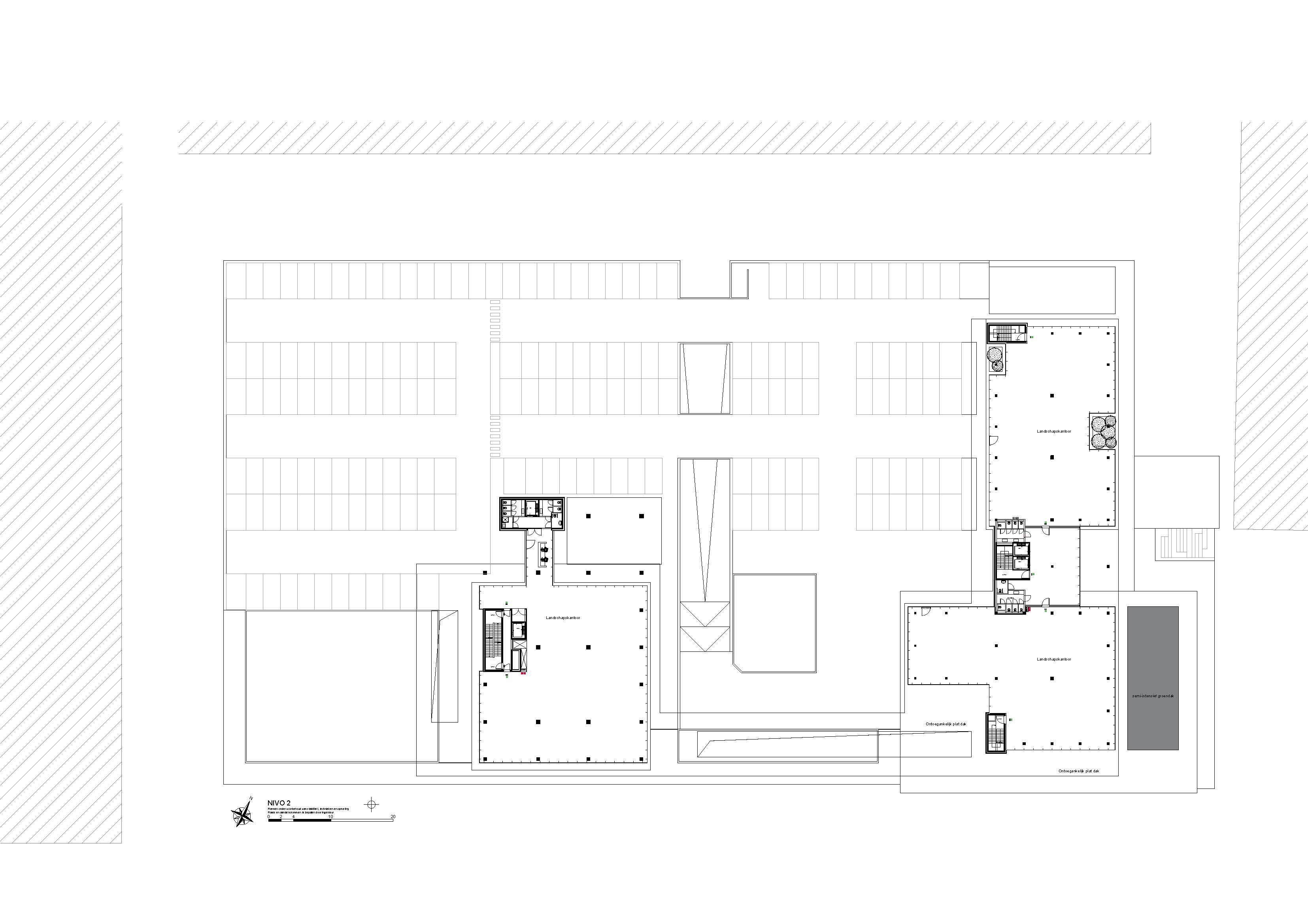
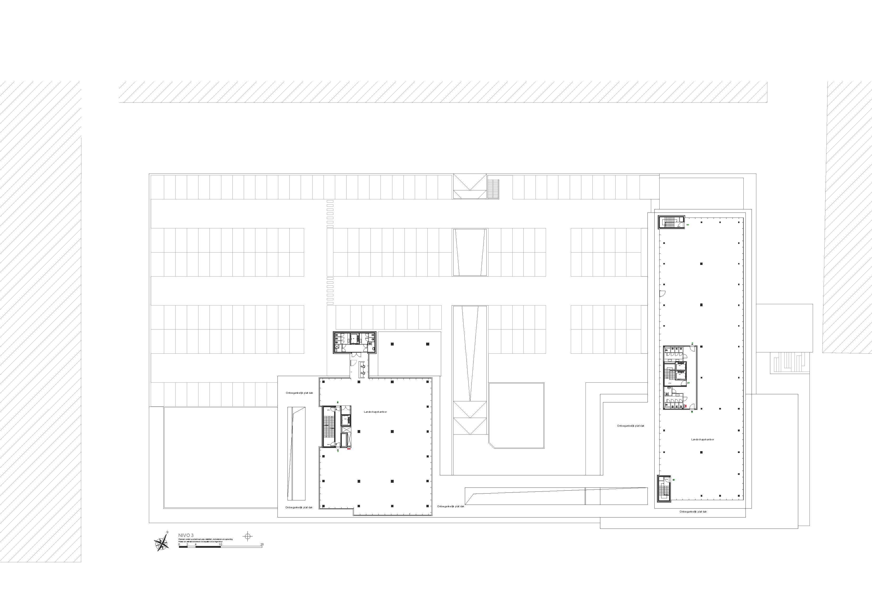
Toren A telt vier verdiepingen en beschikt over een ruime showroom van ca. 400 m².
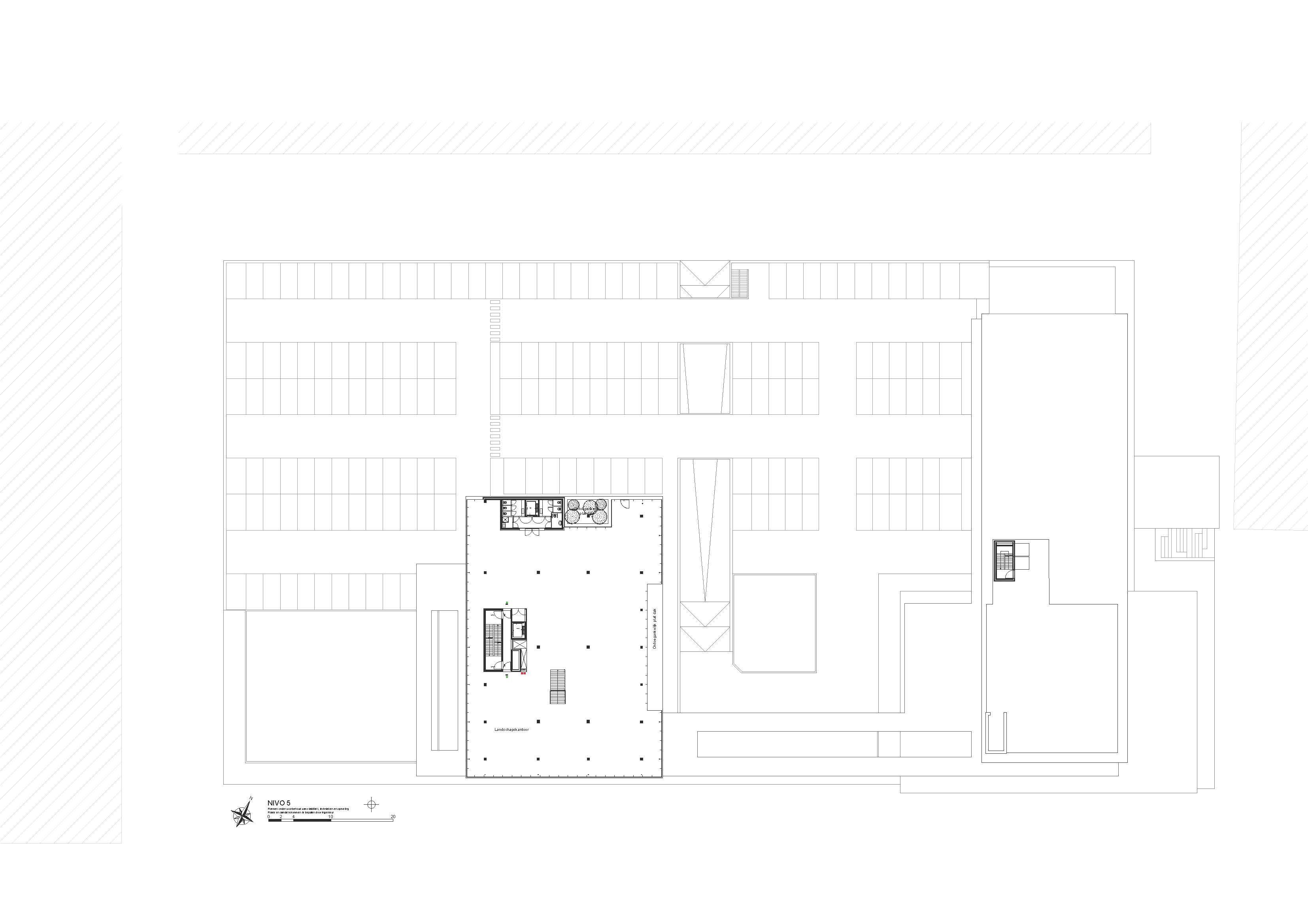
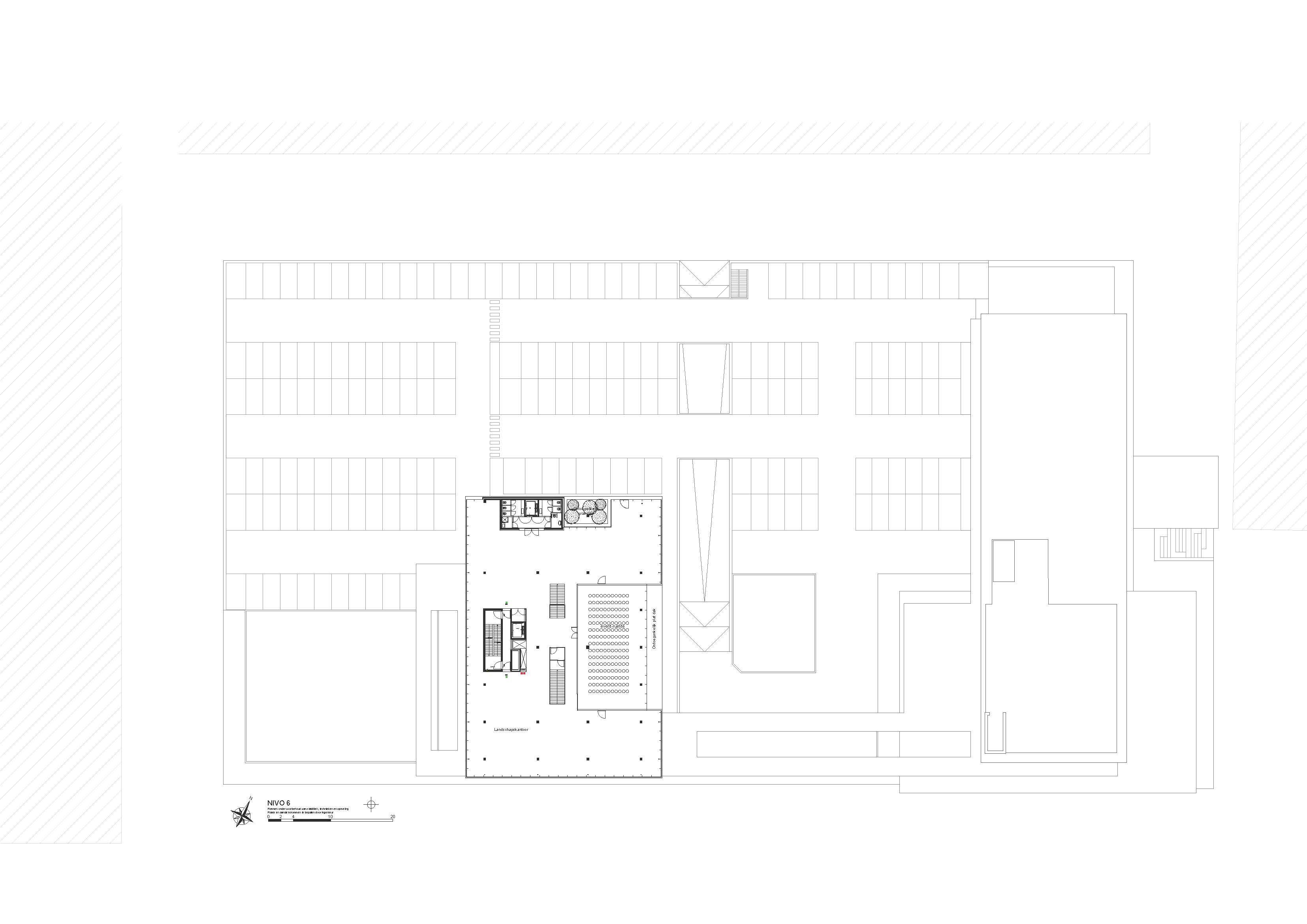
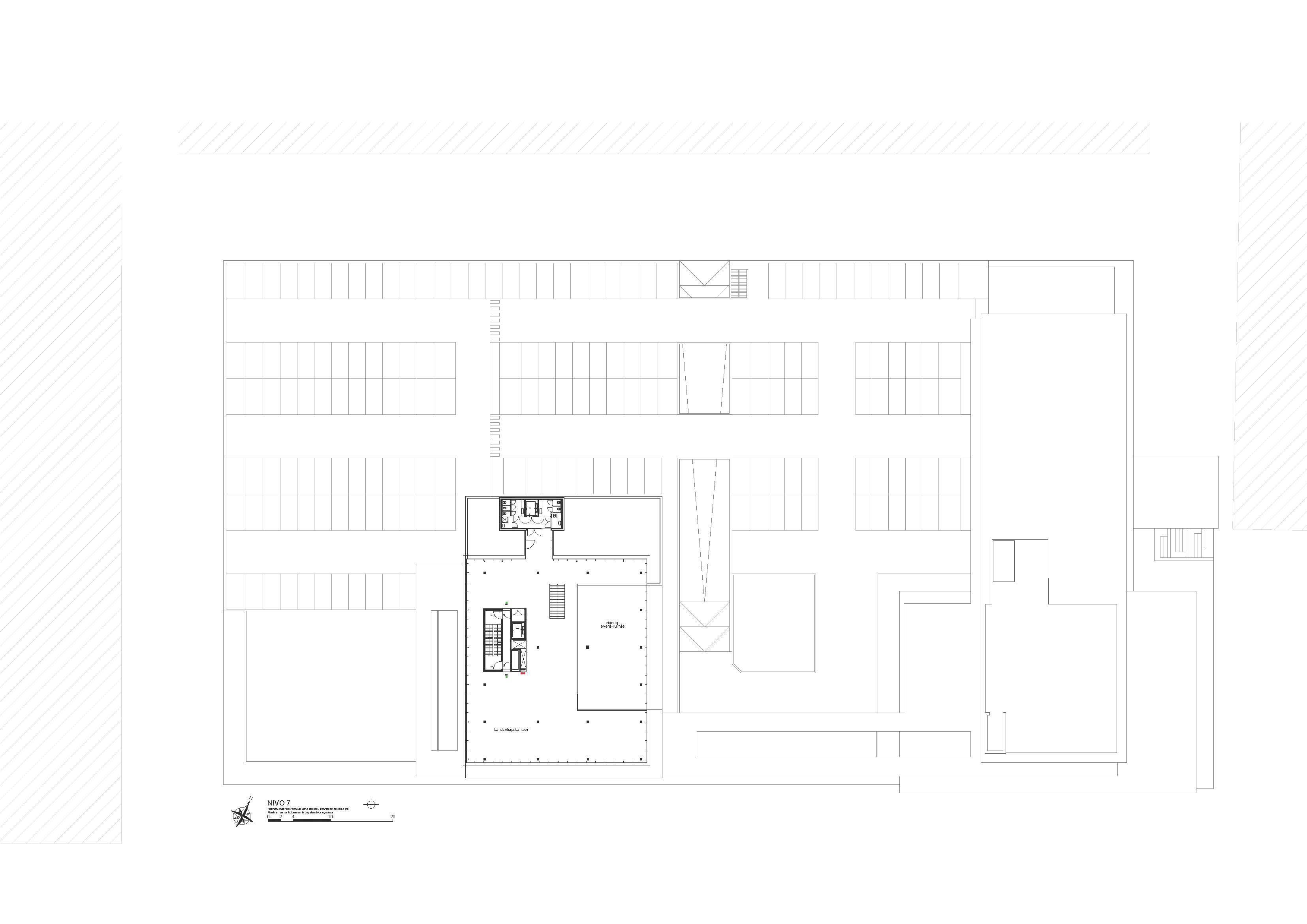
Toren B, met zeven verdiepingen, is ideaal voor ambitieuze groeibedrijven die op zoek zijn naar representatieve kantoorruimte.
Daarnaast omvat het project zes KMO-units (loodsen) met oppervlaktes van ca. 737 m² tot 3.861 m². Dankzij minimale tussenkolommen zijn deze units flexibel indeelbaar en geschikt voor productie, opslag en distributie.
Duurzaamheid en efficiëntie vormen de kern van het ontwerp. The Edge maakt gebruik van energiezuinige technieken en een doordachte inrichting, gecombineerd met een strakke, tijdloze architectuur. Het resultaat is een duurzame en performante werkomgeving die meegroeit met uw onderneming, vandaag én morgen.
De interesse in Bedrijvenpark The Edge is groot: meer dan 80% van het project is reeds ingevuld.
Momenteel zijn enkel nog de volgende units beschikbaar:
Kantoorverdieping 4
Kantoorverdieping 7
Loods 2A
Loods 4
Wilt u uw onderneming vestigen op een uitzonderlijke locatie langs de E17 en deel uitmaken van dit unieke bedrijvenpark? Neem vandaag nog contact met ons op voor meer informatie of een bezoek ter plaatse.








Locatie
Contact















![[:swvar:ufile:12:description:]](/swfiles/files/Logo-cookies.jpg?nc=1773312188)