Bedrijvenpark Kallo
Naast de Haven van Antwerpen
Project in voorbereiding
Partnership met Zabra
Status.
ProjectvoorbereidingBouwjaar.
2026-2027Architect.
AAVOOpdrachtgever.
LCV Real Estate - ZabraCategorie.
KMO - Kantoren - Build to suitFootprint.
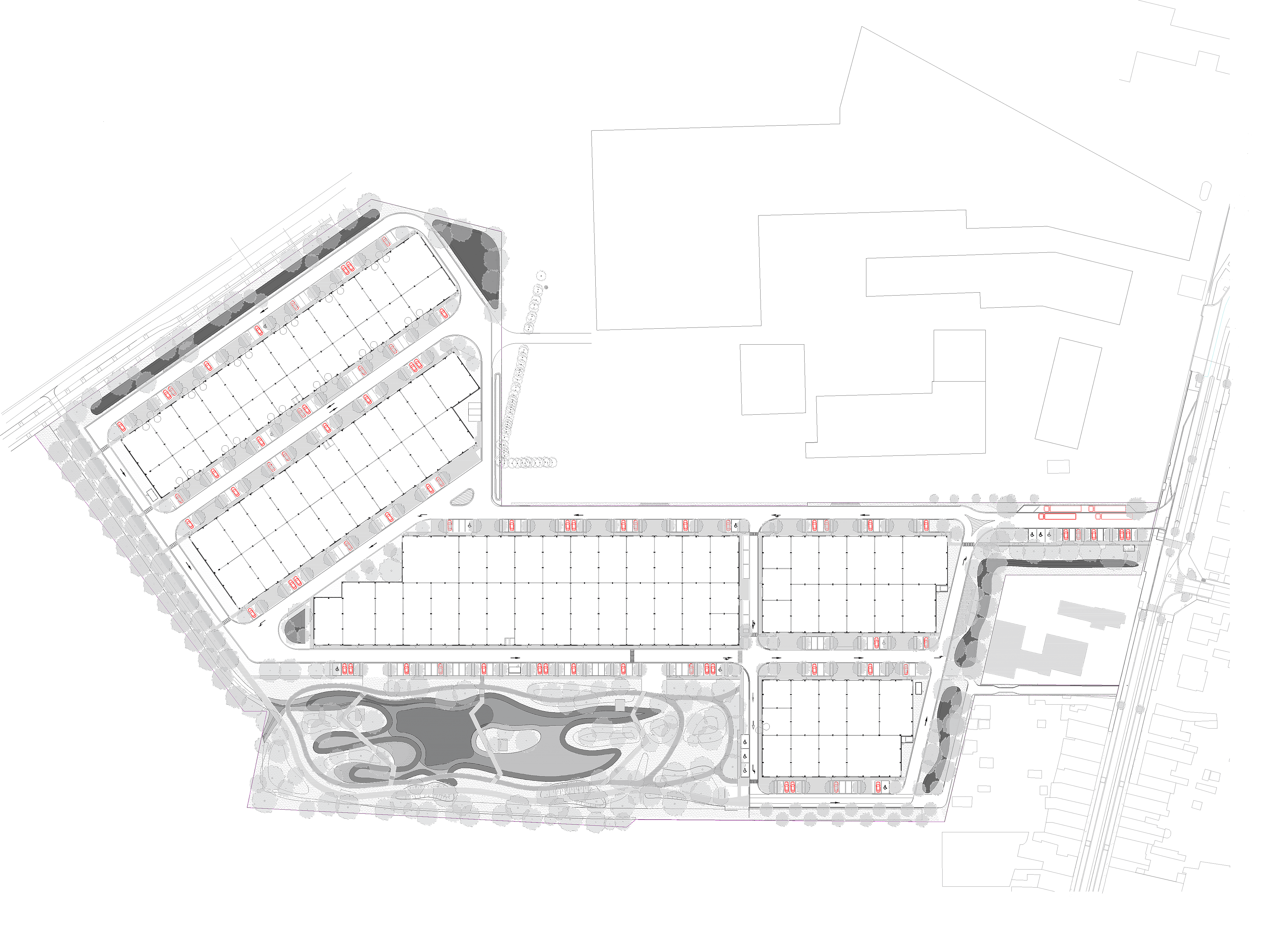
22.116 m²Business Park Kallo – Fase 1
Duurzaam ondernemen op toplocatie aan de Waaslandhaven
Business Park Kallo is een nieuw, modern KMO-bedrijvenpark op een strategische ligging nabij de Port of Antwerp-Bruges, tussen de R2, E34 en A12.
Fase 1 omvat de bouw van 50 moderne KMO-units met bijhorende infrastructuur en een groen landschapspark dat als natuurlijk hart van het bedrijvenpark fungeert. De units worden casco opgeleverd en zijn geschikt voor ambachtelijke bedrijven en kmo’s die op zoek zijn naar een hedendaagse, duurzame werkplek met uitstekende bereikbaarheid.
Duurzaam en doordacht ontwerp
Het ontwerp van Business Park Kallo zet in op tijdloze architectuur, onderhoudsvriendelijke materialen en een vergroende omgeving met wadi’s, buffervijvers en natuurlijke waterinfiltratie. Regenwater wordt opgevangen, hergebruikt en geïnfiltreerd, wat het park klimaatadaptief en ecologisch sterk maakt.
Daarnaast garandeert een collectief parkbeheer dat het terrein steeds in perfecte staat blijft, zowel voor ondernemers als bezoekers.
Bereikbaarheid en comfort
Dankzij de ligging vlak bij belangrijke verkeersassen en het havengebied is het park vlot bereikbaar voor zowel goederenverkeer als personeel. Er zijn ruime parkeervoorzieningen, veilige fietsverbindingen en een bushalte aan de ingang.
Binnen het park worden gemotoriseerd verkeer, fietsers en voetgangers strikt gescheiden voor maximale veiligheid en comfort.
Een groene werkomgeving met toekomstvisie
De landschappelijke inrichting vormt een unieke meerwaarde: een natuurlijk parklandschap met wandelpaden, zitzones en waterpartijen zorgt voor een aangename werkomgeving en verhoogt de biodiversiteit. Zo combineert Business Park Kallo efficiënt ondernemen met ecologisch bewustzijn.
Benieuwd naar de mogelijkheden binnen fase 1 van Business Park Kallo?
Ontdek hieronder binnenkort de beschikbare units of neem contact met ons op voor meer informatie.




Locatie
Contact






![[:swvar:ufile:12:description:]](/swfiles/files/Logo-cookies.jpg?nc=1773312188)